嵯峨野ビル物件ID:42528

  • 駅近
  • 新耐震基準

賃貸条件

階数
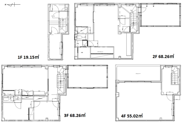
1~4階
面積
63.73坪(210.67㎡)
賃料
800,000円
礼金
3ヵ月
管理費
-
預託金
3ヵ月
償却費
ー 
更新料
ー 
契約期間
定借 10年 
入居日
相談 
備考
指定保証会社加入要
指定火災保険加入要
その他
事務所・社宅に最適!
現状有姿(設備は全て残置物扱い)
バルコニー使用可
屋上(61.95㎡)使用可
民泊店舗相談可
風俗法関連不可
※現況優先
1階はエントランス

※賃料等は税別表示です。

物件情報

物件名
嵯峨野ビル
住所
大阪府大阪市中央区東心斎橋1-9-3
竣工
1987年3月
建物規模
鉄骨造 地上 4階建 
主要設備
駅近 新耐震 
特徴
物件を見学したい、空室情報など
物件のお問い合わせ
0120-661-755 受付時間|平日10:00~19:00
物件ID【42528】をお伝えください
お問い合わせから10分で返信いたしますこの物件を問い合わせる

交通アクセス

  • ・ 長堀橋駅 徒歩2分
  • ・ 心斎橋駅 徒歩7分
5秒で簡単資料請求
お名前
Email
TEL
WEB非公開物件がございます
たくさんのオフィス物件が公開されている中で流通する物件は極僅か。
なかには解約予告前に相談に来る物件や、解約時の原状回復前に居抜きなどでお引渡しできる物件もございます。
"大阪オフィス"の賃貸情報なら、なんでもお任せください!!
ご来店も大歓迎です
ご来店や御社事務所にて対面でのお打ち合わせをおススメしております。
お客様のご要望を是非お聞かせください!
現事務所の解約スケジュールや移転時期、内装工事、各種手続きのタイミング、引渡しまで全てTFCがご提案いたします。
大阪の賃貸不動産は、TFCのエキスパートにお任せください!!

近くのエリアで探してみる

エリア
大阪エリア 心斎橋
最寄り駅
長堀橋  / 心斎橋

嵯峨野ビルと同等の坪数の物件

嵯峨野ビルと同等の賃料の物件

LINEで最新情報を配信中
気軽に相談可能です