プレジャーズコーポレーションビル物件ID:40966














- 個別空調
- 機械警備
- 駐車場付
賃貸条件
- 階数
- 6階
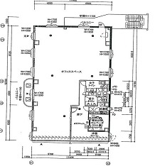
- 面積
- 68.36坪(225.97㎡)
- 賃料
- 820,320円
- 礼金
- 3ヵ月
- 管理費
- 205,080円
- 預託金
- 2ヵ月
- 償却費
- ー
- 更新料
- 相談
- 契約期間
- 2年 自動更新
- 入居日
- 相談
- 備考
- 短期解約違約金あり
現状戻し特約あり
平面駐車場:40000円+税
機械式駐車場:25000円+税 - その他
- 1フロア貸し
※賃料等は税別表示です。
物件情報
- 物件名
- プレジャーズコーポレーションビル
- 住所
- 大阪府大阪市北区大淀中2-11−8
- 竣工
- 2004年1月
- 建物規模
- 鉄骨造 地上10 階建 地下1 階
- 主要設備
- エレベーター 機械警備 男女別トイレ 給湯
- 特徴
- -
物件を見学したい、空室情報など
物件のお問い合わせ
物件のお問い合わせ
0120-661-755 受付時間|平日10:00~19:00
物件ID【40966】をお伝えください
お問い合わせから10分で返信いたしますこの物件を問い合わせる 交通アクセス
- ・ 中津駅 徒歩10分
プレジャーズコーポレーションビル 募集中の区画
階数 | 坪数 | 賃料 | 管理費 | 坪単価 | 預託金 | 入居日 |
---|---|---|---|---|---|---|
7階 | 68.36坪 | 765,630円 | 191,408円 | 14,000円 | 2ヵ月 | 相談 |
5秒で簡単資料請求