マニュライフプレイス堂島物件ID:45269

  • 駅近
  • 新耐震基準
  • 天井高2,500mm以上
  • OAフロア
  • 個別空調
  • 機械警備
  • EV2機以上

賃貸条件

階数
6階
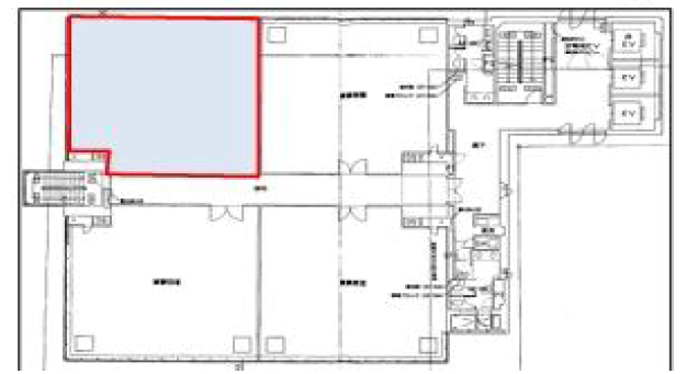
面積
32.13坪(106.21㎡)
賃料
835,380円
礼金
-
管理費
-
預託金
12ヵ月
償却費
ー 
更新料
ー 
契約期間
定借 期間相談 
入居日
2026年8月
その他
タイルカーペット仕上げ
有人警備

※賃料等は税別表示です。

物件情報

物件名
マニュライフプレイス堂島
住所
大阪府大阪市北区堂島浜1-4-19
竣工
2007年8月
建物規模
鉄筋コンクリート造 地下1 階 塔屋1階 地上12 階建
主要設備
個別空調 エレベーター2基以上 OAフロア 天井高2.5M以上 有人警備 機械警備 駅近 
特徴
物件を見学したい、空室情報など
物件のお問い合わせ
0120-661-755 受付時間|平日10:00~19:00
物件ID【45269】をお伝えください
お問い合わせから10分で返信いたしますこの物件を問い合わせる

交通アクセス

  • ・ 北新地駅 徒歩4分
  • ・ 西梅田駅 徒歩4分
マニュライフプレイス堂島 募集中の区画
階数 坪数 賃料 管理費 坪単価 預託金 入居日
10階 32.13坪 応相談 - - 12ヵ月 相談 
5秒で簡単資料請求
お名前
Email
TEL
WEB非公開物件がございます
たくさんのオフィス物件が公開されている中で流通する物件は極僅か。
なかには解約予告前に相談に来る物件や、解約時の原状回復前に居抜きなどでお引渡しできる物件もございます。
"大阪オフィス"の賃貸情報なら、なんでもお任せください!!
ご来店も大歓迎です
ご来店や御社事務所にて対面でのお打ち合わせをおススメしております。
お客様のご要望を是非お聞かせください!
現事務所の解約スケジュールや移転時期、内装工事、各種手続きのタイミング、引渡しまで全てTFCがご提案いたします。
大阪の賃貸不動産は、TFCのエキスパートにお任せください!!

近くのエリアで探してみる

エリア
大阪エリア 堂島
最寄り駅
北新地  / 西梅田

マニュライフプレイス堂島と同等の坪数の物件

マニュライフプレイス堂島と同等の賃料の物件

LINEで最新情報を配信中
気軽に相談可能です