M.VOLANTI UMEDA物件ID:44129

  • 築浅
  • 駅近
  • 新耐震基準
  • OAフロア
  • 個別空調
  • 機械警備
  • 男女別トイレ
  • EV2機以上

賃貸条件

階数
2階
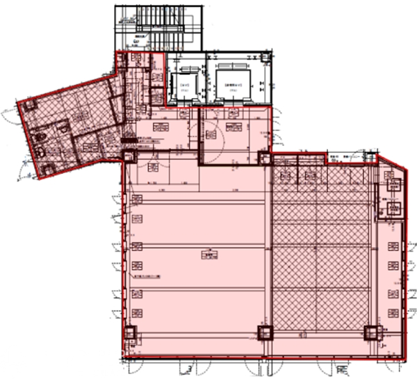
面積
61.81坪(204.32㎡)
賃料
2,000,000円
礼金
-
管理費
-
預託金
10ヵ月
償却費
ー 
更新料
ー 
契約期間
定借
入居日
即日 
その他
クリニック、店舗、来店系事務所にお勧め!!
スケルトン渡し

※賃料等は税別表示です。

物件情報

物件名
M.VOLANTI UMEDA
住所
大阪府大阪市北区曾根崎2-7-2
竣工
2024年5月
建物規模
鉄骨造 地上12階建
主要設備
 男女別トイレ 個別空調 光ファイバー エレベーター2基以上 24時間利用可 駅近 
特徴
物件を見学したい、空室情報など
物件のお問い合わせ
0120-661-755 受付時間|平日10:00~19:00
物件ID【44129】をお伝えください
お問い合わせから10分で返信いたしますこの物件を問い合わせる

交通アクセス

  • ・ 大阪梅田駅 徒歩5分
  • ・ 梅田駅 徒歩5分
  • ・ 大阪駅 徒歩7分
5秒で簡単資料請求
お名前
Email
TEL
WEB非公開物件がございます
たくさんのオフィス物件が公開されている中で流通する物件は極僅か。
なかには解約予告前に相談に来る物件や、解約時の原状回復前に居抜きなどでお引渡しできる物件もございます。
"大阪オフィス"の賃貸情報なら、なんでもお任せください!!
ご来店も大歓迎です
ご来店や御社事務所にて対面でのお打ち合わせをおススメしております。
お客様のご要望を是非お聞かせください!
現事務所の解約スケジュールや移転時期、内装工事、各種手続きのタイミング、引渡しまで全てTFCがご提案いたします。
大阪の賃貸不動産は、TFCのエキスパートにお任せください!!

近くのエリアで探してみる

エリア
大阪エリア 梅田
最寄り駅
大阪梅田  / 梅田  / 大阪

梅田でM.VOLANTI UMEDAに似た条件の物件

M.VOLANTI UMEDAの最寄りの物件

M.VOLANTI UMEDAと同等の坪数の物件

M.VOLANTI UMEDAと同等の賃料の物件

LINEで最新情報を配信中
気軽に相談可能です