本町南ガーデンシティ物件ID:42075

  • 駅近
  • 新耐震基準
  • 24時間使用可
  • 天井高2,500mm以上
  • OAフロア
  • 個別空調
  • 機械警備
  • 男女別トイレ
  • EV2機以上

賃貸条件

階数
8階
面積
75.99坪(251.2㎡)
賃料
2,051,730円
礼金
-
管理費
-
預託金
12ヵ月
償却費
ー 
更新料
ー 
契約期間
定借 5年 
入居日
2026年7月
備考
指定火災保険加入要
指定家賃保証会社加入相談
その他
三方道路、御堂筋に面したオフィスビル!

※賃料等は税別表示です。

物件情報

物件名
本町南ガーデンシティ
住所
大阪府大阪市中央区北久宝寺町3-6-1
竣工
2011年2月
建物規模
鉄骨鉄筋コンクリート造 地下2階地上26階建
主要設備
男女別トイレ 個別空調 光ファイバー 有人警備 機械警備 エレベーター2基以上 24時間利用可 OAフロア 天井高2.5M以上 駅近 新耐震 
特徴
物件を見学したい、空室情報など
物件のお問い合わせ
0120-661-755 受付時間|平日10:00~19:00
物件ID【42075】をお伝えください
お問い合わせから10分で返信いたしますこの物件を問い合わせる

交通アクセス

  • ・ 本町駅 徒歩3分
本町南ガーデンシティ 募集中の区画
階数 坪数 賃料 管理費 坪単価 預託金 入居日
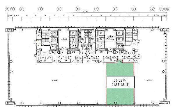
9階 56.62坪 1,528,740円 - 27,000円 12ヵ月 即日 
4階 55.15坪 1,489,050円 - 27,000円 12ヵ月 相談 
5秒で簡単資料請求
お名前
Email
TEL
WEB非公開物件がございます
たくさんのオフィス物件が公開されている中で流通する物件は極僅か。
なかには解約予告前に相談に来る物件や、解約時の原状回復前に居抜きなどでお引渡しできる物件もございます。
"大阪オフィス"の賃貸情報なら、なんでもお任せください!!
ご来店も大歓迎です
ご来店や御社事務所にて対面でのお打ち合わせをおススメしております。
お客様のご要望を是非お聞かせください!
現事務所の解約スケジュールや移転時期、内装工事、各種手続きのタイミング、引渡しまで全てTFCがご提案いたします。
大阪の賃貸不動産は、TFCのエキスパートにお任せください!!

近くのエリアで探してみる

エリア
大阪エリア 本町
最寄り駅
本町

本町で本町南ガーデンシティに似た条件の物件

本町南ガーデンシティと同等の坪数の物件

本町南ガーデンシティと同等の賃料の物件

LINEで最新情報を配信中
気軽に相談可能です