市ヶ谷クロスプレイス(旧:近代科学社ビル)物件ID:44962

  • 新耐震基準
  • OAフロア
  • 個別空調
  • 機械警備
  • 男女別トイレ
  • EV2機以上
  • 駐車場付

賃貸条件

階数
3階
面積
41.41坪(136.88㎡)
賃料
952,430円
礼金
-
管理費
-
預託金
6ヵ月
償却費
ー 
更新料
新賃料の1ヶ月分 
契約期間
普通借 2年 
入居日
2026年7月
備考
指定保証会社要加入
その他
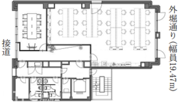
受付・会議室付セットアップオフィス
外堀通りに面する視認性の高い立地
エントランス開放時間:全日6:00~20:00 ※左記時間帯以外は鍵解錠により24時間入退館可能

※賃料等は税別表示です。

物件情報

物件名
市ヶ谷クロスプレイス(旧:近代科学社ビル)
住所
東京都新宿区市谷田町2-7-15
竣工
1993年6月
建物規模
鉄骨・鉄筋コンクリート造 地下2階 地上9階建
主要設備
エレベーター 個別空調 機械警備 24時間利用可 管理人常駐 駅近 新耐震 
特徴
外堀通りに面す、赤レンガ外観の落ち着いた佇まいの物件です。
物件を見学したい、空室情報など
物件のお問い合わせ
0120-486-656 受付時間|平日10:00~19:00
物件ID【44962】をお伝えください
お問い合わせから10分で返信いたしますこの物件を問い合わせる

交通アクセス

  • ・ 市ヶ谷駅 徒歩6分
市ヶ谷クロスプレイス(旧:近代科学社ビル) 募集中の区画
階数 坪数 賃料 管理費 坪単価 預託金 入居日
9階901 13.1坪 255,000円 - 19,400円 6ヵ月 即日 
5秒で簡単資料請求
お名前
Email
TEL
WEB非公開物件がございます
新宿区を中心に15年以上、たくさんのオーナー様の信頼を勝ち得てきたTFCだからこそ
ご紹介できる"非公開物件"がございます!!
お客様一人ひとりに合ったこだわり条件に誠心誠意お応えいたします。
"新宿オフィス"の賃貸情報なら、なんでもお任せください!!
ご来店も大歓迎です
安心してお任せいただけるよう、ご来店をおすすめしております。
お客様のご要望を対面にて、是非!お聞かせください!!
現事務所の解約スケジュールや移転時期、内装工事、各種手続きのタイミング、引渡しまで全てTFCがご提案いたします。
新宿エリアの賃貸不動産は、TFCのエキスパートに是非お任せください!!

近くのエリアで探してみる

エリア
新宿エリア 飯田橋・市ヶ谷
最寄り駅
市ヶ谷

市ヶ谷クロスプレイス(旧:近代科学社ビル)と同等の坪数の物件

市ヶ谷クロスプレイス(旧:近代科学社ビル)と同等の賃料の物件

LINEで最新情報を配信中
気軽に相談可能です