シャンヴィラ・カテリーナ物件ID:14688




- 駅近
- 個別空調
- 男女別トイレ
- 駐車場付
賃貸条件
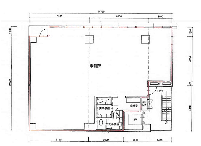
- 階数
- 3階
- 面積
- 43.32坪(143.2㎡)
- 賃料
- 応相談
- 礼金
- -
- 管理費
- -
- 預託金
- 12ヵ月
- 償却費
- ー
- 更新料
- ー
- 契約期間
- 普通借 2年
- 入居日
- 2026/3/1
- 備考
- 機械式駐車場あり(隣接ビル内)
駐車料45000円/月(税別)
敷金3ヶ月分
全長5050mm
全幅1850mm
全高1600mm
重量:1600kg
タイヤ外寸:1700mm以下
地上高130mm以上
入出庫可能時間:7時-23時 - その他
- 天井高2480mm(梁下2350mm、2050mm)
電気あり
ガスなし
給湯あり
電話引き込み可
エレベーター1基
冷暖房:個別空調
※賃料等は税別表示です。
物件情報
- 物件名
- シャンヴィラ・カテリーナ
- 住所
- 東京都新宿区新宿1-16-9
- 竣工
- 1987年3月
- 建物規模
- 鉄骨鉄筋コンクリート造 地上 9階建
- 主要設備
- 個別空調 エレベーター 男女別トイレ 機械警備 24時間利用可 駅近 新耐震
- 特徴
- 白タイル貼りの清潔感溢れる外観です!
西に明治通り、南に新宿通り、北に靖国通りに囲まれ、車両でのアクセスも便利です。
物件を見学したい、空室情報など
物件のお問い合わせ
物件のお問い合わせ
0120-486-656 受付時間|平日10:00~19:00
物件ID【14688】をお伝えください
お問い合わせから10分で返信いたしますこの物件を問い合わせる 交通アクセス
- ・ 新宿御苑前駅 徒歩2分
- ・ 新宿三丁目駅 徒歩6分
- ・ 新宿駅 徒歩15分
シャンヴィラ・カテリーナ 募集中の区画
階数 | 坪数 | 賃料 | 管理費 | 坪単価 | 預託金 | 入居日 |
---|---|---|---|---|---|---|
4階 | 43.32坪 | 応相談 | - | - | 12ヵ月 | 2026/3/1 |
5秒で簡単資料請求