SPビル物件ID:45617

  • 駅近
  • 新耐震基準
  • 個別空調
  • 男女別トイレ
  • EV2機以上

賃貸条件

階数
6階
面積
53.08坪(175.46㎡)
賃料
981,980円
礼金
-
管理費
185,780円
預託金
8ヵ月
償却費
ー 
更新料
新賃料の1ヶ月分 
契約期間
普通借 2年 
入居日
相談 
その他
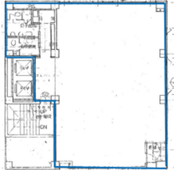
南北2面のサッシ窓で明るいオフィス
24時間人的警備(守衛)
建物内禁煙(別途喫煙スペース有)
時間外入退室可
トイレ・水回り・エアコンフィルター清掃、
トイレットペーパー交換は貸主側で実施

※賃料等は税別表示です。

物件情報

物件名
SPビル
住所
東京都千代田区飯田橋3-11-20
竣工
1985年12月
建物規模
鉄骨鉄筋コンクリート造 地下 2階 地上 7階建 
主要設備
個別空調 光ファイバー引込可 エレベーター2基 男女別トイレ 有人警備 24時間利用可 駅近 
特徴
外堀通り沿いのオフィスビル一室です。
男女別トイレを完備!お部屋自体は水廻りとワークスペースが分けられているので、メリハリのあるレイアウトも叶います。
物件を見学したい、空室情報など
物件のお問い合わせ
0120-486-656 受付時間|平日10:00~19:00
物件ID【45617】をお伝えください
お問い合わせから10分で返信いたしますこの物件を問い合わせる

交通アクセス

  • ・ 飯田橋駅 徒歩1分
SPビル 募集中の区画
階数 坪数 賃料 管理費 坪単価 預託金 入居日
7階 53.08坪 981,980円 185,780円 22,000円 8ヵ月 相談 
5秒で簡単資料請求
お名前
Email
TEL
WEB非公開物件がございます
新宿区を中心に15年以上、たくさんのオーナー様の信頼を勝ち得てきたTFCだからこそ
ご紹介できる"非公開物件"がございます!!
お客様一人ひとりに合ったこだわり条件に誠心誠意お応えいたします。
"新宿オフィス"の賃貸情報なら、なんでもお任せください!!
ご来店も大歓迎です
安心してお任せいただけるよう、ご来店をおすすめしております。
お客様のご要望を対面にて、是非!お聞かせください!!
現事務所の解約スケジュールや移転時期、内装工事、各種手続きのタイミング、引渡しまで全てTFCがご提案いたします。
新宿エリアの賃貸不動産は、TFCのエキスパートに是非お任せください!!

近くのエリアで探してみる

エリア
新宿エリア 飯田橋・市ヶ谷
最寄り駅
飯田橋

SPビルと同等の坪数の物件

SPビルと同等の賃料の物件

LINEで最新情報を配信中
気軽に相談可能です