近畿税理士会館・大同生命ビル物件ID:42281

  • 24時間使用可
  • 天井高2,500mm以上
  • OAフロア
  • 個別空調
  • 男女別トイレ
  • EV2機以上
  • 駐車場付

賃貸条件

階数
9階
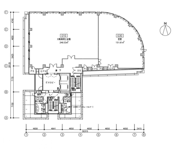
面積
45.86坪(151.59㎡)
賃料
応相談
礼金
-
管理費
-
預託金
12ヵ月
償却費
ー 
更新料
相談 
契約期間
普通借 年数相談 
入居日
相談 
その他
駅までとほ1分!
アクセス抜群でおすすめです!
開館時間:8時~18時
休館日:日・祝
駐車場(空きなし:要確認)
天井高:2600mm
OAフロア:50mm

※賃料等は税別表示です。

物件情報

物件名
近畿税理士会館・大同生命ビル
住所
大阪府大阪市中央区谷町1-5-4
竣工
1998年6月
建物規模
鉄骨鉄筋コンクリート造 地上 11階建 
主要設備
駅近 個別空調 エレベーター2基  24時間利用可 駐車場 OAフロア 
特徴
物件を見学したい、空室情報など
物件のお問い合わせ
0120-661-755 受付時間|平日10:00~19:00
物件ID【42281】をお伝えください
お問い合わせから10分で返信いたしますこの物件を問い合わせる

交通アクセス

  • ・ 天満橋駅 徒歩1分
5秒で簡単資料請求
お名前
Email
TEL
WEB非公開物件がございます
たくさんのオフィス物件が公開されている中で流通する物件は極僅か。
なかには解約予告前に相談に来る物件や、解約時の原状回復前に居抜きなどでお引渡しできる物件もございます。
"大阪オフィス"の賃貸情報なら、なんでもお任せください!!
ご来店も大歓迎です
ご来店や御社事務所にて対面でのお打ち合わせをおススメしております。
お客様のご要望を是非お聞かせください!
現事務所の解約スケジュールや移転時期、内装工事、各種手続きのタイミング、引渡しまで全てTFCがご提案いたします。
大阪の賃貸不動産は、TFCのエキスパートにお任せください!!

近くのエリアで探してみる

エリア
大阪エリア 天満橋・谷町
最寄り駅
天満橋

天満橋・谷町で近畿税理士会館・大同生命ビルに似た条件の物件

近畿税理士会館・大同生命ビルと同等の坪数の物件

近畿税理士会館・大同生命ビルと同等の賃料の物件

LINEで最新情報を配信中
気軽に相談可能です