E-ma物件ID:41220

  • 駅近
  • EV2機以上
  • 新耐震基準
  • 駐車場付

賃貸条件

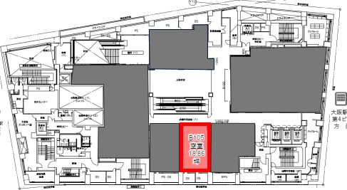
階数
地下1階
面積
18.86坪(62.34㎡)
賃料
応相談
礼金
-
管理費
-
預託金
12ヵ月
償却費
ー 
更新料
相談 
契約期間
定借 期間応相談
入居日
相談 
備考
内装管理費負担有

※賃料等は税別表示です。

物件情報

物件名
E-ma
住所
大阪府大阪市北区梅田1-12-6
竣工
2002年4月
建物規模
鉄骨鉄筋コンクリート造 地上 14階建 地下3階 
主要設備
エレベーター2基以上 有人警備 機械警備 駅近 新耐震 
特徴
物件を見学したい、空室情報など
物件のお問い合わせ
0120-661-755 受付時間|平日10:00~19:00
物件ID【41220】をお伝えください
お問い合わせから10分で返信いたしますこの物件を問い合わせる

交通アクセス

  • ・ 東梅田駅 徒歩1分
  • ・ 梅田駅 徒歩2分
E-ma 募集中の区画
階数 坪数 賃料 管理費 坪単価 預託金 入居日
地下2階 33.24坪 応相談 - - 12ヵ月 相談 
1階 59.62坪 2,682,900円 - 45,000円 12ヵ月 相談 
5階 28.02坪 840,600円 - 30,000円 12ヵ月 相談 
5秒で簡単資料請求
お名前
Email
TEL
WEB非公開物件がございます
たくさんのオフィス物件が公開されている中で流通する物件は極僅か。
なかには解約予告前に相談に来る物件や、解約時の原状回復前に居抜きなどでお引渡しできる物件もございます。
"大阪オフィス"の賃貸情報なら、なんでもお任せください!!
ご来店も大歓迎です
ご来店や御社事務所にて対面でのお打ち合わせをおススメしております。
お客様のご要望を是非お聞かせください!
現事務所の解約スケジュールや移転時期、内装工事、各種手続きのタイミング、引渡しまで全てTFCがご提案いたします。
大阪の賃貸不動産は、TFCのエキスパートにお任せください!!

近くのエリアで探してみる

エリア
大阪エリア 梅田
最寄り駅
東梅田  / 梅田

E-maと同等の坪数の物件

E-maと同等の賃料の物件

LINEで最新情報を配信中
気軽に相談可能です