道修町後藤ビル物件ID:41608

  • 駅近
  • 個別空調
  • OAフロア
  • 機械警備

賃貸条件

階数
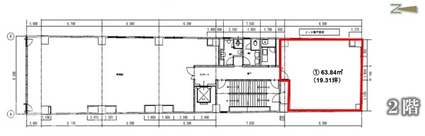
2階(B区画) ①
面積
19.31坪(63.83㎡)
賃料
183,445円
礼金
-
管理費
-
預託金
9ヵ月
償却費
ー 
更新料
相談 
契約期間
普通借 2年
入居日
2026年2月1日
その他
アクセス自在、快適なオフィスです!
日祝閉館
OA床相談

※賃料等は税別表示です。

物件情報

物件名
道修町後藤ビル
住所
大阪府大阪市中央区道修町2-2-6
竣工
1989年2月
建物規模
鉄骨鉄筋コンクリート造 地下 1階 地上 9階建 
主要設備
OAフロア 機械警備 駅近 エレベーター 個別空調 
特徴
物件を見学したい、空室情報など
物件のお問い合わせ
0120-661-755 受付時間|平日10:00~19:00
物件ID【41608】をお伝えください
お問い合わせから10分で返信いたしますこの物件を問い合わせる

交通アクセス

  • ・ 北浜駅 徒歩2分
  • ・ 淀屋橋駅 徒歩7分
道修町後藤ビル 募集中の区画
階数 坪数 賃料 管理費 坪単価 預託金 入居日
6階(BC区画)② 19.31坪 応相談 - - 9ヵ月 即日 
8階(A区画) ③ 37.28坪 354,160円 - 9,500円 9ヵ月 2026年2月1日
8階(B区画) ④ 19.31坪 183,440円 - 9,500円 9ヵ月 2026年2月1日
9階(A区画) ⑤ 35.56坪 337,820円 - 9,500円 9ヵ月 2026年2月1日
5秒で簡単資料請求
お名前
Email
TEL
WEB非公開物件がございます
たくさんのオフィス物件が公開されている中で流通する物件は極僅か。
なかには解約予告前に相談に来る物件や、解約時の原状回復前に居抜きなどでお引渡しできる物件もございます。
"大阪オフィス"の賃貸情報なら、なんでもお任せください!!
ご来店も大歓迎です
ご来店や御社事務所にて対面でのお打ち合わせをおススメしております。
お客様のご要望を是非お聞かせください!
現事務所の解約スケジュールや移転時期、内装工事、各種手続きのタイミング、引渡しまで全てTFCがご提案いたします。
大阪の賃貸不動産は、TFCのエキスパートにお任せください!!

近くのエリアで探してみる

エリア
大阪エリア 淀屋橋・北浜
最寄り駅
北浜  / 淀屋橋

道修町後藤ビルと同等の坪数の物件

道修町後藤ビルと同等の賃料の物件

LINEで最新情報を配信中
気軽に相談可能です