本町武田ビル物件ID:41566




























- 新耐震基準
- OAフロア
- 個別空調
- 機械警備
- EV2機以上
- 駐車場付
賃貸条件
- 階数
- 2階 南
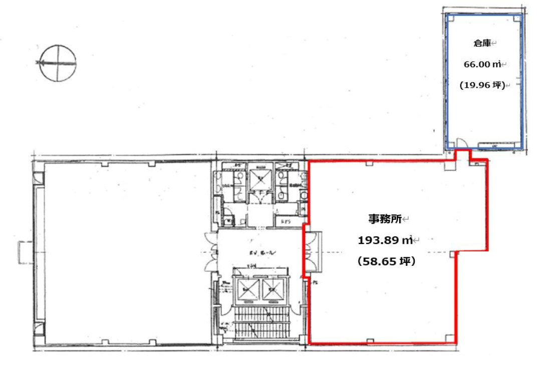
- 面積
- 58.65坪(193.87㎡)
- 賃料
- 応相談
- 礼金
- -
- 管理費
- 175,950円
- 預託金
- 12ヵ月
- 償却費
- ー
- 更新料
- ー
- 契約期間
- 定借 3年
- 入居日
- 即日
- 備考
- 倉庫を使う場合:賃料別途請求(敷金12ヶ月分)
倉庫を使わない場合:賃料なし - その他
- 2路線2駅利用可能
光ケーブル引き込みあり
24時間機械警備(カードリーダー方式)
天井高:2500mm
床荷重:300kg/㎡
貸室内LED照明導入
機械警備(セキュリティ設備)導入済み
荷物用エレベーターあり(常用2基につき、全3基)
駐車場:機械式18台(空き要確認)
倉庫あり
※現況優先
※賃料等は税別表示です。
物件情報
- 物件名
- 本町武田ビル
- 住所
- 大阪府大阪市中央区久太郎町3-1-29
- 竣工
- 1988年1月
- 建物規模
- 鉄骨鉄筋コンクリート造 地下2階地上10階建
- 主要設備
- 男女別トイレ 個別空調 光ファイバー 機械警備 エレベーター2基以上 OAフロア 駐車場 駅近
- 特徴
- -
物件を見学したい、空室情報など
物件のお問い合わせ
物件のお問い合わせ
0120-661-755 受付時間|平日10:00~19:00
物件ID【41566】をお伝えください
お問い合わせから10分で返信いたしますこの物件を問い合わせる 交通アクセス
- ・ 本町駅 徒歩2分
本町武田ビル 募集中の区画
階数 | 坪数 | 賃料 | 管理費 | 坪単価 | 預託金 | 入居日 |
---|---|---|---|---|---|---|
5階 南 | 58.65坪 | 応相談 | 175,950円 | - | 12ヵ月 | 即日 |
8階 南 | 58.65坪 | 応相談 | 175,950円 | - | 12ヵ月 | 即日 |
7階 北 | 63.57坪 | 応相談 | 197,100円 | - | 12ヵ月 | 2026年3月1日 |
10階 北 | 51.42坪 | 応相談 | 154,260円 | - | 12ヵ月 | 2026年3月1日 |
5秒で簡単資料請求