胡屋ビル(えびすやびる)物件ID:41348


















- 個別空調
賃貸条件
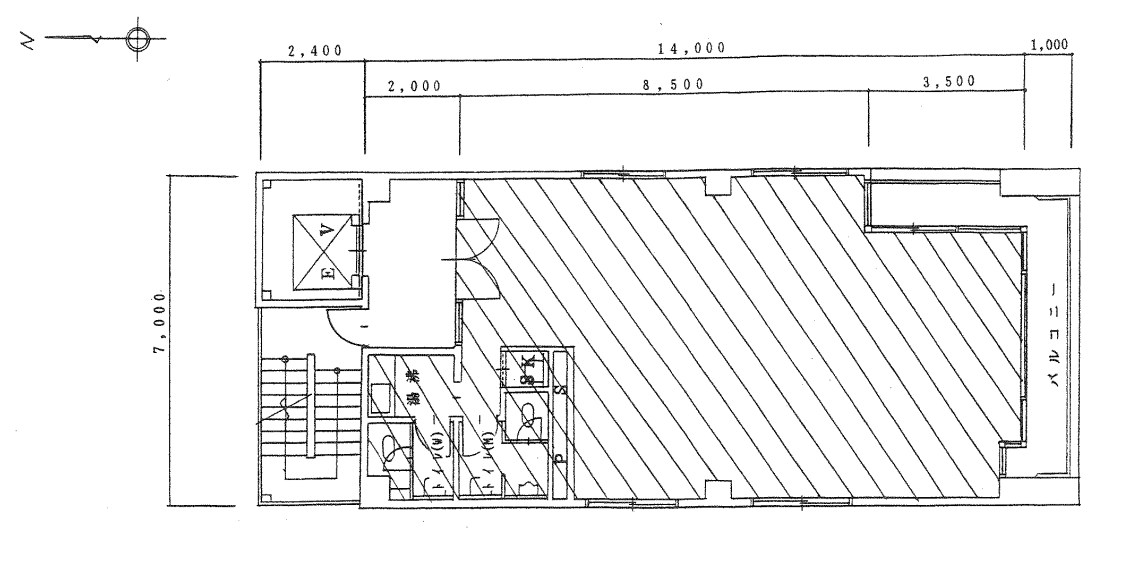
- 階数
- 7階
- 面積
- 25.9坪(85.61㎡)
- 賃料
- 220,000円
- 礼金
- 600,000円
- 管理費
- 26,000円
- 預託金
- 600,000円
- 償却費
- ー
- 更新料
- 相談
- 契約期間
- 定借 5年 (再契約相談可:協議の上5年以内)
- 入居日
- 相談(契約後1~2ヶ月)
- 備考
- 諸費用:電気代・消耗品・保険料など
保証会社加入要
鍵交換代:19800円 - その他
- 湯沸室
エレベーター
玄関オートロック(指定時間あり)
セキュリティ
館内禁煙
引渡は改修後
※賃料等は税別表示です。
物件情報
- 物件名
- 胡屋ビル(えびすやびる)
- 住所
- 大阪府大阪市中央区平野町1-5-11
- 竣工
- 1989年1月
- 建物規模
- 鉄骨造陸屋根 地上 9階建
- 主要設備
- 給湯 エレベーター 男女別トイレ 個別空調
- 特徴
- -
物件を見学したい、空室情報など
物件のお問い合わせ
物件のお問い合わせ
0120-661-755 受付時間|平日10:00~19:00
物件ID【41348】をお伝えください
お問い合わせから10分で返信いたしますこの物件を問い合わせる 交通アクセス
- ・ 北浜駅 徒歩5分
- ・ 淀屋橋駅 徒歩7分
5秒で簡単資料請求