南船場じゅんさんビル物件ID:44935

  • 男女別トイレ

賃貸条件

階数
6階601
面積
20.76坪(68.62㎡)
賃料
228,360円
礼金
3ヵ月
管理費
-
預託金
3ヵ月
償却費
ー 
更新料
相談 
契約期間
普通借 2年 
入居日
即日 
備考
保証会社加入必須
借家人賠償付保険要加入
短期解約違約金あり
その他
業種ご相談ください!
管理の行き届いた綺麗なオフィスビルです

※賃料等は税別表示です。

物件情報

物件名
南船場じゅんさんビル
住所
大阪府大阪市中央区南船場3-7-29
竣工
1973年6月
建物規模
鉄筋コンクリート造 地上7 階建 
主要設備
給湯 男女別トイレ エレベーター 
特徴
物件を見学したい、空室情報など
物件のお問い合わせ
0120-661-755 受付時間|平日10:00~19:00
物件ID【44935】をお伝えください
お問い合わせから10分で返信いたしますこの物件を問い合わせる

交通アクセス

  • ・ 心斎橋駅 徒歩5分
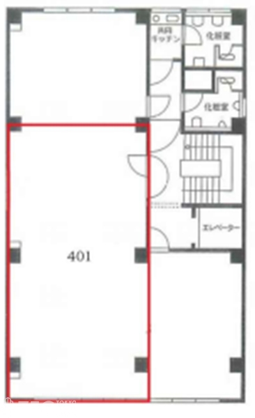
南船場じゅんさんビル 募集中の区画
階数 坪数 賃料 管理費 坪単価 預託金 入居日
4階401 16.43坪 187,300円 - 11,300円 3ヵ月 即日 
5秒で簡単資料請求
お名前
Email
TEL
WEB非公開物件がございます
たくさんのオフィス物件が公開されている中で流通する物件は極僅か。
なかには解約予告前に相談に来る物件や、解約時の原状回復前に居抜きなどでお引渡しできる物件もございます。
"大阪オフィス"の賃貸情報なら、なんでもお任せください!!
ご来店も大歓迎です
ご来店や御社事務所にて対面でのお打ち合わせをおススメしております。
お客様のご要望を是非お聞かせください!
現事務所の解約スケジュールや移転時期、内装工事、各種手続きのタイミング、引渡しまで全てTFCがご提案いたします。
大阪の賃貸不動産は、TFCのエキスパートにお任せください!!

近くのエリアで探してみる

エリア
大阪エリア 本町
最寄り駅
心斎橋

南船場じゅんさんビルと同等の坪数の物件

南船場じゅんさんビルと同等の賃料の物件

LINEで最新情報を配信中
気軽に相談可能です