内本町松林ビル物件ID:44640

  • 駅近
  • 新耐震基準
  • 24時間使用可
  • OAフロア
  • 個別空調
  • 機械警備

賃貸条件

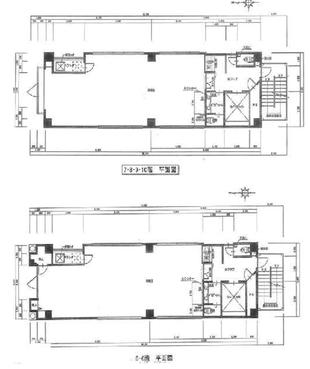
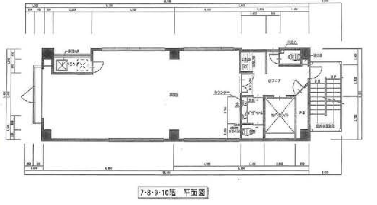
階数
7階
面積
26.73坪(88.36㎡)
賃料
160,000円
礼金
-
管理費
60,000円
預託金
600,000円
償却費
ー 
更新料
ー 
契約期間
相談 
入居日
2026年8月1日
備考
借家人賠償保険加入必須
保証会社加入必須

※賃料等は税別表示です。

物件情報

物件名
内本町松林ビル
住所
大阪府大阪市中央区内本町1-2-6
竣工
1992年7月
建物規模
鉄骨鉄筋コンクリート造 地上10 階建 
主要設備
エレベーター 個別空調 機械警備 24時間利用可 駅近 
特徴
物件を見学したい、空室情報など
物件のお問い合わせ
0120-661-755 受付時間|平日10:00~19:00
物件ID【44640】をお伝えください
お問い合わせから10分で返信いたしますこの物件を問い合わせる

交通アクセス

  • ・ 谷町四丁目駅 徒歩2分
内本町松林ビル 募集中の区画
階数 坪数 賃料 管理費 坪単価 預託金 入居日
6階 26.73坪 160,000円 60,000円 8,200円 600,000円 即日 
5秒で簡単資料請求
お名前
Email
TEL
WEB非公開物件がございます
たくさんのオフィス物件が公開されている中で流通する物件は極僅か。
なかには解約予告前に相談に来る物件や、解約時の原状回復前に居抜きなどでお引渡しできる物件もございます。
"大阪オフィス"の賃貸情報なら、なんでもお任せください!!
ご来店も大歓迎です
ご来店や御社事務所にて対面でのお打ち合わせをおススメしております。
お客様のご要望を是非お聞かせください!
現事務所の解約スケジュールや移転時期、内装工事、各種手続きのタイミング、引渡しまで全てTFCがご提案いたします。
大阪の賃貸不動産は、TFCのエキスパートにお任せください!!

近くのエリアで探してみる

エリア
大阪エリア 天満橋・谷町
最寄り駅
谷町四丁目

天満橋・谷町で内本町松林ビルに似た条件の物件

内本町松林ビルの最寄りの物件

内本町松林ビルと同等の坪数の物件

内本町松林ビルと同等の賃料の物件

LINEで最新情報を配信中
気軽に相談可能です