CHビル(仮称)キャロットホールディングス本社ビル物件ID:41042














- 築浅
- 駅近
- 新耐震基準
- OAフロア
- 個別空調
- 機械警備
- 男女別トイレ
- EV2機以上
賃貸条件
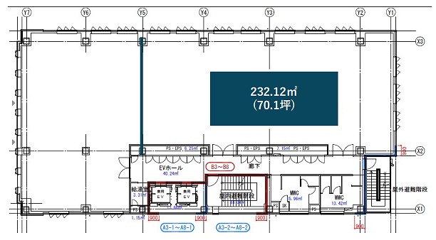
- 階数
- 4階 中央・南
- 面積
- 70.1坪(231.72㎡)
- 賃料
- 応相談
- 礼金
- -
- 管理費
- -
- 預託金
- 12ヵ月
- 償却費
- ー
- 更新料
- ー
- 契約期間
- 普通借家契約
- 入居日
- 即日
- その他
- 求積に伴い面積が変更になる場合がございます
来店系業種相談可
※賃料等は税別表示です。
物件情報
- 物件名
- CHビル(仮称)キャロットホールディングス本社ビル
- 住所
- 大阪府大阪市中央区高麗橋2-3-9
- 竣工
- 2025年2月
- 建物規模
- 鉄骨造 地上8 階建
- 主要設備
- 個別空調 エレベーター2基以上 機械警備 光ファイバー 男女別トイレ 駅近 新耐震 OAフロア 天井高2.5M以上
- 特徴
- -
物件を見学したい、空室情報など
物件のお問い合わせ
物件のお問い合わせ
0120-661-755 受付時間|平日10:00~19:00
物件ID【41042】をお伝えください
お問い合わせから10分で返信いたしますこの物件を問い合わせる 交通アクセス
- ・ 北浜駅 徒歩2分
- ・ 淀屋橋駅 徒歩6分
CHビル(仮称)キャロットホールディングス本社ビル 募集中の区画
階数 | 坪数 | 賃料 | 管理費 | 坪単価 | 預託金 | 入居日 |
---|---|---|---|---|---|---|
3階 | 121.55坪 | 応相談 | - | - | 12ヵ月 | 相談 |
5階 | 121.55坪 | 応相談 | - | - | 12ヵ月 | 即日 |
6階 | 121.55坪 | 応相談 | - | - | 12ヵ月 | 即日 |
7階 | 121.55坪 | 応相談 | - | - | 12ヵ月 | 即日 |
8階 | 121.55坪 | 応相談 | - | - | 12ヵ月 | 即日 |
5秒で簡単資料請求