PRIME GATE UMEDA物件ID:41013






















- 築浅
- 新耐震基準
- 自家発電設備あり
- 24時間使用可
- 天井高2,700mm以上
- OAフロア
- 個別空調
- 貸会議室併設
- 機械警備
- 男女別トイレ
- EV2機以上
- 駐車場付
賃貸条件
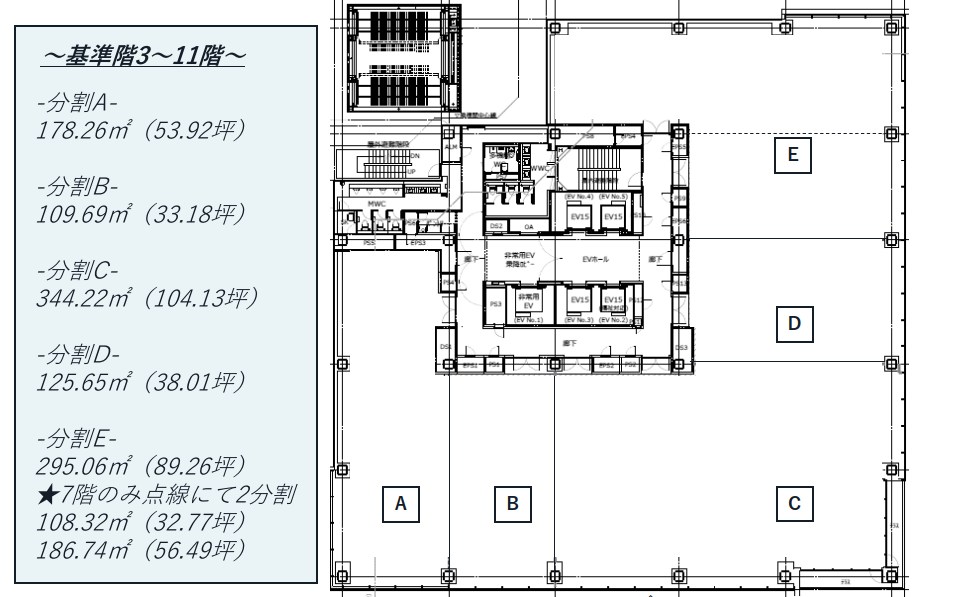
- 階数
- 7階A
- 面積
- 53.92坪(178.24㎡)
- 賃料
- 応相談
- 礼金
- -
- 管理費
- -
- 預託金
- 12ヵ月
- 償却費
- ー
- 更新料
- ー
- 契約期間
- 定借 年数相談(普通借家契約相談)
- 入居日
- 相談
- 備考
- 指定火災保険要加入
駐車場:普通車50000円/台 ハイルーフ車60000円/台 敷金3ヶ月(空き要確認)
駐輪場:3000円/月・台(空き要確認)
バイク置き場:自動二輪10000円/台 原付3000円/台(空き要確認)
看板料:50000円/枚(敷金3ヶ月)
専有部内清掃必須
ごみ処理:多量の塵芥、産業廃棄物は別途請求
電気代・水道代:別途請求 - その他
- 2024年7月竣工!来店型店舗もご相談ください
1階喫煙ルームあり
機械式立体駐車場・平面駐車場あり
天井高:2800mm
LED照明
OAフロア:100mm
床荷重:500kg/㎡
電気容量60VA/㎡
光ケーブル:MDFまでの敷設あり
防犯カメラ
貸室扉にカードリーダー設置
24時間出入可
エントランス開閉時間:8時~20時
※賃料等は税別表示です。
物件情報
- 物件名
- PRIME GATE UMEDA
- 住所
- 大阪府大阪市北区大深町2-2
- 竣工
- 2024年7月
- 建物規模
- 鉄骨造 地上11 階建
- 主要設備
- 男女別トイレ 個別空調 有人警備 機械警備 エレベーター2基以上 24時間利用可 天井高2.5M以上 OAフロア 駐車場 新耐震
- 特徴
- -
物件を見学したい、空室情報など
物件のお問い合わせ
物件のお問い合わせ
0120-661-755 受付時間|平日10:00~19:00
物件ID【41013】をお伝えください
お問い合わせから10分で返信いたしますこの物件を問い合わせる 交通アクセス
- ・ 大阪駅 徒歩9分
- ・ 梅田駅 徒歩10分
PRIME GATE UMEDA 募集中の区画
階数 | 坪数 | 賃料 | 管理費 | 坪単価 | 預託金 | 入居日 |
---|---|---|---|---|---|---|
11階 | 318.5坪 | 8,918,000円 | - | 28,000円 | 12ヵ月 | 即日 |
5秒で簡単資料請求