上六Fビルディング物件ID:35618
















- 駅近
- 24時間使用可
- 個別空調
- EV2機以上
- 駐車場付
- 新耐震基準
- 男女別トイレ
賃貸条件
- 階数
- 地下1階
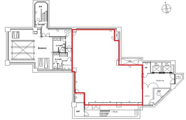
- 面積
- 70.86坪(234.24㎡)
- 賃料
- 応相談
- 礼金
- 応相談
- 管理費
- -
- 預託金
- 応相談
- 償却費
- 相談
- 更新料
- 相談
- 契約期間
- 定借 期間相談
- 入居日
- 2025年2月
- その他
- 床・壁・天井スケルトン引渡し
事務所以外用途につき要相談
※賃料等は税別表示です。
物件情報
- 物件名
- 上六Fビルディング
- 住所
- 大阪府大阪市中央区上本町西5-3-5
- 竣工
- 1993年9月
- 建物規模
- 鉄骨鉄筋コンクリート造 地下 1階 地上 11階建
- 主要設備
- 個別空調 24時間利用可 機械警備 エレベーター2基 駐車場
- 特徴
- -
物件を見学したい、空室情報など
物件のお問い合わせ
物件のお問い合わせ
0120-661-755 受付時間|平日10:00~19:00
物件ID【35618】をお伝えください
お問い合わせから10分で返信いたしますこの物件を問い合わせる 交通アクセス
- ・ 大阪上本町駅 徒歩1分
- ・ 谷町九丁目駅 徒歩3分
5秒で簡単資料請求