VICTORIA CENTERビル物件ID:45253

  • 新耐震基準

賃貸条件

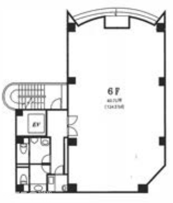
階数
6階
面積
40.71坪(134.57㎡)
賃料
529,230円
礼金
-
管理費
-
預託金
6ヵ月
償却費
ー 
更新料
新賃料の1ヶ月分 
契約期間
定借 4年 
入居日
相談 
備考
ペット不可
楽器使用不可
民泊不可
フリーレント相談可
その他
24時間緊急通報システム
セキュリティあり
ビルトインエアコン
ワンフロアワンテナント
角住戸
四方角部屋
オートロック
ガスコンロ設置済
エレベーター
メールボックス

※賃料等は税別表示です。

物件情報

物件名
VICTORIA CENTERビル
住所
東京都新宿区四谷4-6-10
竣工
1989年9月
建物規模
鉄骨鉄筋コンクリート造 地下1階 地上10階建
主要設備
EV1基 個別空調 OAフロア 光ケーブル 男女別トイレ 機械警備 24時間利用可 新耐震 
特徴
新宿通りに面する好立地貸事務所 白を基調とした明るいエントランス
物件を見学したい、空室情報など
物件のお問い合わせ
0120-486-656 受付時間|平日10:00~19:00
物件ID【45253】をお伝えください
お問い合わせから10分で返信いたしますこの物件を問い合わせる

交通アクセス

  • ・ 四谷三丁目駅 徒歩4分
  • ・ 新宿御苑前駅 徒歩6分
  • ・ 曙橋駅 徒歩11分
5秒で簡単資料請求
お名前
Email
TEL
WEB非公開物件がございます
新宿区を中心に15年以上、たくさんのオーナー様の信頼を勝ち得てきたTFCだからこそ
ご紹介できる"非公開物件"がございます!!
お客様一人ひとりに合ったこだわり条件に誠心誠意お応えいたします。
"新宿オフィス"の賃貸情報なら、なんでもお任せください!!
ご来店も大歓迎です
安心してお任せいただけるよう、ご来店をおすすめしております。
お客様のご要望を対面にて、是非!お聞かせください!!
現事務所の解約スケジュールや移転時期、内装工事、各種手続きのタイミング、引渡しまで全てTFCがご提案いたします。
新宿エリアの賃貸不動産は、TFCのエキスパートに是非お任せください!!

近くのエリアで探してみる

エリア
新宿エリア 新宿・新宿三丁目・新宿御苑
最寄り駅
四谷三丁目  / 新宿御苑前  / 曙橋

VICTORIA CENTERビルと同等の坪数の物件

VICTORIA CENTERビルと同等の賃料の物件

LINEで最新情報を配信中
気軽に相談可能です