WIND KIOICHO BLDG.(旧紀尾井町山本ビル)物件ID:43670

  • 駅近
  • 新耐震基準
  • OAフロア
  • 個別空調
  • 男女別トイレ

賃貸条件

階数
7階
面積
29.6坪(97.84㎡)
賃料
740,000円
礼金
-
管理費
-
預託金
6ヵ月
償却費
2ヶ月分 
更新料
新賃料の1ヶ月分 
契約期間
定借 2年 
入居日
相談 
備考
指定保証会社要加入
火災保険要加入
※保証⾦変更の場合有
その他
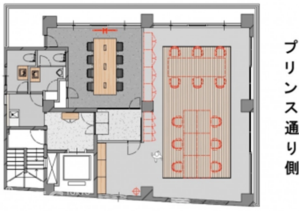
2025年8⽉ 全⾯リニューアル!
セミセットアップ(受付・会議室)
1フロア1テナント

※賃料等は税別表示です。

物件情報

物件名
WIND KIOICHO BLDG.(旧紀尾井町山本ビル)
住所
東京都千代田区紀尾井町3-30
竣工
1984年2月
建物規模
鉄骨鉄筋コンクリート造 地上8階建 
主要設備
エレベーター  個別空調  エアコン  光ファイバー 男女別トイレ 24時間利用可 駅近 
特徴
プリンス通りに面する明るいオフィス
大通沿い
物件を見学したい、空室情報など
物件のお問い合わせ
0120-486-656 受付時間|平日10:00~19:00
物件ID【43670】をお伝えください
お問い合わせから10分で返信いたしますこの物件を問い合わせる

交通アクセス

  • ・ 麹町駅 徒歩3分
  • ・ 永田町駅 徒歩5分
5秒で簡単資料請求
お名前
Email
TEL
WEB非公開物件がございます
新宿区を中心に15年以上、たくさんのオーナー様の信頼を勝ち得てきたTFCだからこそ
ご紹介できる"非公開物件"がございます!!
お客様一人ひとりに合ったこだわり条件に誠心誠意お応えいたします。
"新宿オフィス"の賃貸情報なら、なんでもお任せください!!
ご来店も大歓迎です
安心してお任せいただけるよう、ご来店をおすすめしております。
お客様のご要望を対面にて、是非!お聞かせください!!
現事務所の解約スケジュールや移転時期、内装工事、各種手続きのタイミング、引渡しまで全てTFCがご提案いたします。
新宿エリアの賃貸不動産は、TFCのエキスパートに是非お任せください!!

近くのエリアで探してみる

エリア
新宿エリア 四谷・四谷三丁目
最寄り駅
麹町  / 永田町

WIND KIOICHO BLDG.(旧紀尾井町山本ビル)と同等の坪数の物件

WIND KIOICHO BLDG.(旧紀尾井町山本ビル)と同等の賃料の物件

LINEで最新情報を配信中
気軽に相談可能です