リベルテ青山物件ID:31753














- 個別空調
賃貸条件
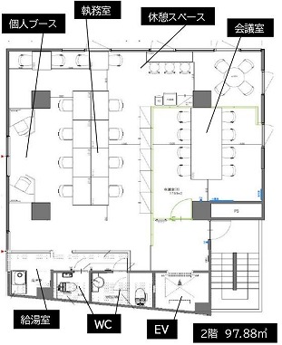
- 階数
- 2階
- 面積
- 29.6坪(97.84㎡)
- 賃料
- 850,000円
- 礼金
- -
- 管理費
- 50,000円
- 預託金
- -
- 償却費
- ー
- 更新料
- 新賃料の1ヶ月分
- 契約期間
- 定借 2年 再契約相談可
- 入居日
- 相談 2025年11月30日解約予定
- 備考
- 指定保証会社・火災保険加入必須
解約予告3カ月前
室内クリーニング費用:税込330000円(什器等含む) - その他
- セットアップオフィス:約8名想定
4線4駅利用可能のアクセスの良さ
国立競技場が窓から見える認知度の高い土地
1階にコンビニ(ローソン)があり何かと便利!
EV不停止キーあり
※賃料等は税別表示です。
物件情報
- 物件名
- リベルテ青山
- 住所
- 東京都渋谷区千駄ヶ谷2-32-2
- 竣工
- 1986年3月
- 建物規模
- 鉄筋コンクリート造 地下 1階 地上 5階建
- 主要設備
- エレベーター 個別空調 24時間利用可 給湯
- 特徴
- 国立競技場が目の前の立地!人気エリアです!
物件を見学したい、空室情報など
物件のお問い合わせ
物件のお問い合わせ
0120-486-656 受付時間|平日10:00~19:00
物件ID【31753】をお伝えください
お問い合わせから10分で返信いたしますこの物件を問い合わせる 交通アクセス
- ・ 国立競技場駅 徒歩6分
- ・ 千駄ケ谷 駅 徒歩9分
- ・ 外苑前駅 徒歩12分
5秒で簡単資料請求