Kioicho435(旧:紀尾井観光ビル)物件ID:42560

  • 駅近
  • 個別空調
  • 機械警備
  • 男女別トイレ

賃貸条件

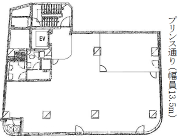
階数
6階
面積
42.98坪(142.07㎡)
賃料
795,130円
礼金
-
管理費
-
預託金
6ヵ月
償却費
ー 
更新料
新賃料の1ヶ月分 
契約期間
普通借 2年 
入居日
即日 
備考
SFビルサポート㈱と保証委託契約を締結していただきます。
その他
居抜き物件
受付と会議室の間仕切りあり
2025年6月、水まわりリニューアル設置済み
2022年4月、エントランスリニューアル実施済み
2016年1月、EVリニューアル実施済み

※賃料等は税別表示です。

物件情報

物件名
Kioicho435(旧:紀尾井観光ビル)
住所
東京都千代田区麹町4-3-5
竣工
1987年10月
建物規模
鉄骨鉄筋コンクリート造 地下 2階 地上 8階建 
主要設備
エレベーター 天井高:2,350㎜ OAフロア 個別空調 男女別トイレ 給湯 機械警備 光ファイバー 駅近 新耐震 
特徴
千代田区麹町に位置するKioicho435は、都心の中でも洗練されたビジネス拠点としておすすめのオフィスです。最寄りの東京メトロ半蔵門線麹町駅から徒歩数分の便利な立地で、皇居や皇居外苑など緑豊かなエリアに囲まれています。アクセスの良さはもちろん、防犯や静粛性にも優れ、安心して集中できる環境を提供します。モダンなデザインと充実した設備を備え、快適な作業空間を確保。周辺には高級レストランやカフェも点在し、ビジネスエリートやクリエイターにとって理想的な場所です。都心の利便性と落ち着いた環境を両立したこのオフィスは、企業の信頼性やブランドイメージ向上にもつながります。麹町エリアでのビジネス展開を考える方にとって、最適な選択と言えるでしょう。
物件を見学したい、空室情報など
物件のお問い合わせ
0120-486-656 受付時間|平日10:00~19:00
物件ID【42560】をお伝えください
お問い合わせから10分で返信いたしますこの物件を問い合わせる

交通アクセス

  • ・ 麹町駅 徒歩1分
  • ・ 半蔵門駅 徒歩5分
  • ・ 永田町駅 徒歩6分
Kioicho435(旧:紀尾井観光ビル) 募集中の区画
階数 坪数 賃料 管理費 坪単価 預託金 入居日
7階 39.54坪 988,500円 - 25,000円 応相談 2026年5月上旬
5秒で簡単資料請求
お名前
Email
TEL
WEB非公開物件がございます
新宿区を中心に15年以上、たくさんのオーナー様の信頼を勝ち得てきたTFCだからこそ
ご紹介できる"非公開物件"がございます!!
お客様一人ひとりに合ったこだわり条件に誠心誠意お応えいたします。
"新宿オフィス"の賃貸情報なら、なんでもお任せください!!
ご来店も大歓迎です
安心してお任せいただけるよう、ご来店をおすすめしております。
お客様のご要望を対面にて、是非!お聞かせください!!
現事務所の解約スケジュールや移転時期、内装工事、各種手続きのタイミング、引渡しまで全てTFCがご提案いたします。
新宿エリアの賃貸不動産は、TFCのエキスパートに是非お任せください!!

近くのエリアで探してみる

エリア
新宿エリア 四谷・四谷三丁目
最寄り駅
麹町  / 半蔵門  / 永田町

Kioicho435(旧:紀尾井観光ビル)と同等の坪数の物件

Kioicho435(旧:紀尾井観光ビル)と同等の賃料の物件

LINEで最新情報を配信中
気軽に相談可能です