グランデューク目白坂物件ID:41386




- 駐車場付
賃貸条件
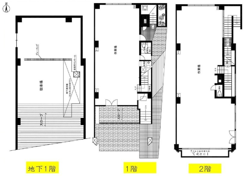
- 階数
- 地下1階・1階・2階
- 面積
- 87.05坪(287.76㎡)
- 賃料
- 950,000円
- 礼金
- -
- 管理費
- 80,000円
- 預託金
- 3ヵ月
- 償却費
- ー
- 更新料
- 新賃料の1ヶ月分
- 契約期間
- 定借 年
- 入居日
- 即日
- 備考
- 保証会社利用要
- その他
- フリーレント相談可能
業種相談可(工場・飲食・事務所・店舗・スタジオ・塾等)
ペット相談可
ピアノ相談可
外国籍相談可
看板設置可能
地下駐車場 6台※車種による
※現況優先
※賃料等は税別表示です。
物件情報
- 物件名
- グランデューク目白坂
- 住所
- 東京都文京区水道2-17-1
- 竣工
- 1986年9月
- 建物規模
- 鉄筋コンクリート造 地下 1階 地上 4階建
- 主要設備
- 駐車場
- 特徴
- -
物件を見学したい、空室情報など
物件のお問い合わせ
物件のお問い合わせ
0120-486-656 受付時間|平日10:00~19:00
物件ID【41386】をお伝えください
お問い合わせから10分で返信いたしますこの物件を問い合わせる 交通アクセス
- ・ 江戸川橋駅 徒歩6分
- ・ 神楽坂駅 徒歩10分
5秒で簡単資料請求