東宝江戸川橋ビル物件ID:41724




- 駅近
- 新耐震基準
- 個別空調
- 機械警備
- EV2機以上
賃貸条件
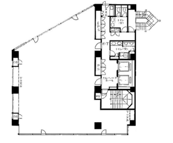
- 階数
- 4階
- 面積
- 83.03坪(274.47㎡)
- 賃料
- 1,165,000円
- 礼金
- 1ヵ月
- 管理費
- -
- 預託金
- 5ヵ月
- 償却費
- 1ヶ月分
- 更新料
- ー
- 契約期間
- 普通借 2年(自動更新)
- 入居日
- 2025年12月1日予定
- 備考
- 保証会社加入
- その他
- 専用トイレ
給湯室
天井高:2.54m
※現況優先
※賃料等は税別表示です。
物件情報
- 物件名
- 東宝江戸川橋ビル
- 住所
- 東京都文京区関口1-24-8
- 竣工
- 1993年3月
- 建物規模
- 鉄骨鉄筋コンクリート造 地下 1階 地上 9階建
- 主要設備
- エレベーター2基 個別空調 機械警備 男女別トイレ 天井高2.5M以上 駐車場 給湯 新耐震
- 特徴
- 東宝江戸川橋ビルは、東京メトロ有楽町線「江戸川橋」駅から徒歩わずか4分と、通勤・来訪ともに抜群のアクセス性が魅力です。さらに、東西線「早稲田」駅へも徒歩10分圏内で、主要エリアへの移動がスムーズです。ビルは1993年竣工のSRC造9階建てで、新耐震基準を満たした構造、2基のエレベーター、個別空調、OAフロア、光ファイバー、機械警備など現代のビジネスを支える充実設備を備えています。周辺にはカフェや銀行、郵便局、飲食店が多く、日常の利便も高く、神田川沿いの桜並木や江戸川公園の自然が仕事の合間のリフレッシュに最適な環境を提供します
物件を見学したい、空室情報など
物件のお問い合わせ
物件のお問い合わせ
0120-486-656 受付時間|平日10:00~19:00
物件ID【41724】をお伝えください
お問い合わせから10分で返信いたしますこの物件を問い合わせる 交通アクセス
- ・ 江戸川橋駅 徒歩4分
- ・ 早稲田駅 徒歩10分
東宝江戸川橋ビル 募集中の区画
階数 | 坪数 | 賃料 | 管理費 | 坪単価 | 預託金 | 入居日 |
---|---|---|---|---|---|---|
5階A | 34.5坪 | 550,000円 | - | 15,900円 | 9ヵ月 | 2026年1月1日入居可(前倒し相談可) |
5秒で簡単資料請求