(仮称)新宿東栄ビル物件ID:38125

  • 築浅
  • 駅近
  • 天井高2,500mm以上
  • OAフロア
  • 新耐震基準
  • 男女別トイレ

賃貸条件

階数
10階
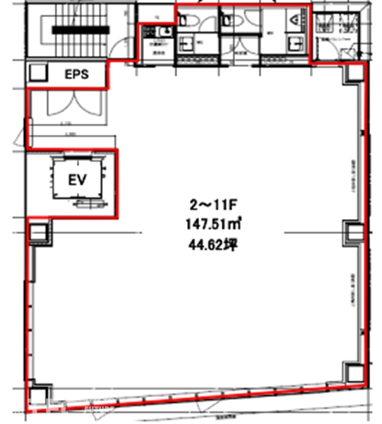
面積
44.62坪(147.5㎡)
賃料
1,204,740円
礼金
-
管理費
133,880円
預託金
10ヵ月
償却費
1.1ヶ月分 
更新料
新賃料の1.1ヶ月分 
契約期間
定借 3年 再契約相談可 
入居日
相談 
備考
解約予告6ヶ月前
借家人賠償特約付火災保険加入必須
指定保証会社利用必須
水回り清掃は別途オプションです
タイルカーペットの敷設は借主側となります
その他
靖国通りに面したミッドサイズオフィスが新宿三丁目に誕生!!
複数路線が乗り入れている新宿三丁目駅から徒歩1分
他複数路線利用可
都庁や新宿区役所など行政施設至近
1階入居予定業種:コンビニエンスストア

※賃料等は税別表示です。

物件情報

物件名
(仮称)新宿東栄ビル
住所
東京都新宿区新宿3-12
竣工
2025年10月
建物規模
鉄骨造 陸屋根 地上12階建
主要設備
駅近 新耐震 エレベーター 男女別トイレ 給湯 
特徴
"「(仮称)新宿東栄ビル」は、東京都新宿区新宿3丁目に位置する新築のオフィスビルで、2025年10月の竣工を予定しています。

新宿駅東口から徒歩圏内の好立地にあり、JR山手線、中央線、総武線、東京メトロ丸ノ内線・副都心線・都営新宿線など、多数の路線が利用可能です。周辺には新宿三丁目エリアの商業施設や飲食店も豊富で、利便性が高いです。

耐震性にも配慮されています。外観はシンプルでありながらも、周囲の街並みに溶け込むデザインが施されています。

新宿駅からのアクセスの良さと、周辺の商業施設や飲食店の充実度から、企業の本社や支社、クリエイティブ系のオフィスなど、多様な業種に適した物件です。また、周辺エリアは新宿区東口地区計画の第一号として、街並みの整備が進められており、今後の発展が期待されます。

「(仮称)新宿東栄ビル」は、都心の利便性と新たな街づくりの中核として、企業の拠点にふさわしい立地と環境を提供します。
物件を見学したい、空室情報など
物件のお問い合わせ
0120-486-656 受付時間|平日10:00~19:00
物件ID【38125】をお伝えください
お問い合わせから10分で返信いたしますこの物件を問い合わせる

交通アクセス

  • ・ 新宿三丁目駅 徒歩1分
  • ・ 新宿駅 徒歩6分
  • ・ 東新宿駅 徒歩11分
(仮称)新宿東栄ビル 募集中の区画
階数 坪数 賃料 管理費 坪単価 預託金 入居日
2階 44.62坪 1,160,120円 133,880円 29,000円 10ヵ月 相談 
3階 44.62坪 1,160,120円 133,880円 29,000円 10ヵ月 相談 
5階 44.62坪 1,160,120円 133,880円 29,000円 10ヵ月 相談 
4階 44.62坪 1,160,120円 133,880円 29,000円 10ヵ月 相談 
6階 44.62坪 1,160,120円 133,880円 29,000円 10ヵ月 相談 
7階 44.62坪 1,160,120円 133,880円 29,000円 10ヵ月 相談 
8階 44.62坪 1,160,120円 133,880円 29,000円 10ヵ月 相談 
9階 44.62坪 1,160,120円 133,880円 29,000円 10ヵ月 相談 
11階 44.62坪 1,204,740円 133,880円 30,000円 10ヵ月 相談 
12階 35.76坪 965,520円 107,280円 30,000円 10ヵ月 相談 
5秒で簡単資料請求
お名前
Email
TEL
WEB非公開物件がございます
新宿区を中心に15年以上、たくさんのオーナー様の信頼を勝ち得てきたTFCだからこそ
ご紹介できる"非公開物件"がございます!!
お客様一人ひとりに合ったこだわり条件に誠心誠意お応えいたします。
"新宿オフィス"の賃貸情報なら、なんでもお任せください!!
ご来店も大歓迎です
安心してお任せいただけるよう、ご来店をおすすめしております。
お客様のご要望を対面にて、是非!お聞かせください!!
現事務所の解約スケジュールや移転時期、内装工事、各種手続きのタイミング、引渡しまで全てTFCがご提案いたします。
新宿エリアの賃貸不動産は、TFCのエキスパートに是非お任せください!!

近くのエリアで探してみる

エリア
新宿エリア 新宿・新宿三丁目・新宿御苑
最寄り駅
新宿三丁目  / 新宿  / 東新宿

(仮称)新宿東栄ビルと同等の坪数の物件

(仮称)新宿東栄ビルと同等の賃料の物件

LINEで最新情報を配信中
気軽に相談可能です