瑞鳥ビル物件ID:33734

  • 駅近
  • OAフロア
  • 新耐震基準
  • 機械警備
  • 男女別トイレ

賃貸条件

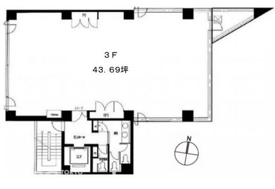
階数
3階
面積
43.69坪(144.42㎡)
賃料
750,000円
礼金
-
管理費
-
預託金
10ヵ月
償却費
2ヶ月分 
更新料
相談
契約期間
普通借 2年 
入居日
即日 
備考
火災保険要加入
内容により保証会社加入義務有り
※加入の場合敷金応相談
その他
事務所利用のみ
洋風な門の先にはガーデンも備えており、自然を感じられるビルです!
平成17年大規模改修済み
ワンフロア独立

※賃料等は税別表示です。

物件情報

物件名
瑞鳥ビル
住所
東京都千代田区九段北1-15-15
竣工
1989年2月
建物規模
鉄筋コンクリート造 地上 6階建 
主要設備
エレベーター 男女別トイレ OAフロア 新耐震 
特徴
千代田区九段北の瑞鳥ビルは、歴史と文化が融合した静かなエリアに位置し、ビジネスに落ち着きと格別な雰囲気をもたらします。最寄りの東京メトロ半蔵門線九段下駅から徒歩数分で、神保町や永田町、皇居周辺へのアクセスも良好です。都心の喧騒から離れた環境ながら、官公庁や大使館、歴史的な名所が近く、ビジネスの信頼性や品格を高める立地です。シンプルながら上質な内装と充実した設備を備え、快適なオフィス空間を提供します。静かな環境と便利な交通アクセスを兼ね備え、起業や中小企業の拠点、または落ち着いた雰囲気を求める大手企業にも最適です。伝統と現代が調和したこの場所は、ビジネスの長期的な発展をサポートします。
物件を見学したい、空室情報など
物件のお問い合わせ
0120-486-656 受付時間|平日10:00~19:00
物件ID【33734】をお伝えください
お問い合わせから10分で返信いたしますこの物件を問い合わせる

交通アクセス

  • ・ 九段下駅 徒歩4分
5秒で簡単資料請求
お名前
Email
TEL
WEB非公開物件がございます
新宿区を中心に15年以上、たくさんのオーナー様の信頼を勝ち得てきたTFCだからこそ
ご紹介できる"非公開物件"がございます!!
お客様一人ひとりに合ったこだわり条件に誠心誠意お応えいたします。
"新宿オフィス"の賃貸情報なら、なんでもお任せください!!
ご来店も大歓迎です
安心してお任せいただけるよう、ご来店をおすすめしております。
お客様のご要望を対面にて、是非!お聞かせください!!
現事務所の解約スケジュールや移転時期、内装工事、各種手続きのタイミング、引渡しまで全てTFCがご提案いたします。
新宿エリアの賃貸不動産は、TFCのエキスパートに是非お任せください!!

近くのエリアで探してみる

エリア
新宿エリア 飯田橋・市ヶ谷
最寄り駅
九段下

瑞鳥ビルと同等の坪数の物件

瑞鳥ビルと同等の賃料の物件

LINEで最新情報を配信中
気軽に相談可能です