EBISU WEST物件ID:41527












- 駅近
賃貸条件
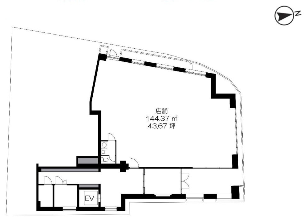
- 階数
- 1階
- 面積
- 43.67坪(144.35㎡)
- 賃料
- 1,965,150円
- 礼金
- 1ヵ月
- 管理費
- -
- 預託金
- 12ヵ月
- 償却費
- 2ヶ月分
- 更新料
- ー
- 契約期間
- 定借 2年
- 入居日
- 相談
- 備考
- 保証会社利用必須(4C's等)
火災保険要加入 - その他
- 恵比寿西5差路すぐ
恵比寿と代官山にアクセスの良い立地
スケルトン渡し
エレベーター
※現況優先
※賃料等は税別表示です。
物件情報
- 物件名
- EBISU WEST
- 住所
- 東京都渋谷区恵比寿西1-16-15
- 竣工
- 1999年5月
- 建物規模
- 鉄筋コンクリート造 地下 2階 地上5 階建
- 主要設備
- エレベーター OAフロア 給湯 個別空調 駅近
- 特徴
- 恵比寿西五差路すぐ
恵比寿と代官山にアクセスの良い立地
物件を見学したい、空室情報など
物件のお問い合わせ
物件のお問い合わせ
0120-486-656 受付時間|平日10:00~19:00
物件ID【41527】をお伝えください
お問い合わせから10分で返信いたしますこの物件を問い合わせる 交通アクセス
- ・ 恵比寿駅 徒歩4分
- ・ 代官山駅 徒歩5分
EBISU WEST 募集中の区画
階数 | 坪数 | 賃料 | 管理費 | 坪単価 | 預託金 | 入居日 |
---|---|---|---|---|---|---|
5階 | 70.19坪 | 2,090,909円 | - | 29,700円 | 10ヵ月 | 相談 |
5秒で簡単資料請求