南青山一丁目戸建物件ID:42541

  • 駅近
  • 新耐震基準
  • 駐車場付

賃貸条件

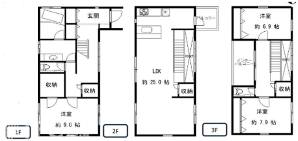
階数
1-3階
面積
42.67坪(141.05㎡)
賃料
853,400円
礼金
-
管理費
-
預託金
4ヵ月
償却費
2ヶ月分 
更新料
新賃料の1ヶ月分 
契約期間
普通借 2年 
入居日
即日 
備考
火災保険加入必須
保証会社要加入:年間30000円
解約予告3カ月前
その他
事務所内装居抜き(内装諸設備残置物)
諸条件応相談

※賃料等は税別表示です。

物件情報

物件名
南青山一丁目戸建
住所
東京都港区南青山1-19-5
竣工
2006年4月
建物規模
木造合金メッキ鋼板板ぶき 地上 3階建 
主要設備
駐車場 駅近 新耐震 
特徴
物件を見学したい、空室情報など
物件のお問い合わせ
0120-486-656 受付時間|平日10:00~19:00
物件ID【42541】をお伝えください
お問い合わせから10分で返信いたしますこの物件を問い合わせる

交通アクセス

  • ・ 乃木坂駅 徒歩3分
  • ・ 六本木駅 徒歩9分
  • ・ 青山一丁目駅 徒歩11分
5秒で簡単資料請求
お名前
Email
TEL
WEB非公開物件がございます
新宿区を中心に15年以上、たくさんのオーナー様の信頼を勝ち得てきたTFCだからこそ
ご紹介できる"非公開物件"がございます!!
お客様一人ひとりに合ったこだわり条件に誠心誠意お応えいたします。
"渋谷オフィス"の賃貸情報なら、なんでもお任せください!!
ご来店も大歓迎です
安心してお任せいただけるよう、ご来店をおすすめしております。
お客様のご要望を対面にて、是非!お聞かせください!!
現事務所の解約スケジュールや移転時期、内装工事、各種手続きのタイミング、引渡しまで全てTFCがご提案いたします。
渋谷エリアの賃貸不動産は、TFCのエキスパートに是非お任せください!!

近くのエリアで探してみる

エリア
渋谷エリア 原宿・表参道・青山一丁目
最寄り駅
乃木坂  / 六本木  / 青山一丁目

南青山一丁目戸建と同等の坪数の物件

南青山一丁目戸建と同等の賃料の物件

LINEで最新情報を配信中
気軽に相談可能です