道修町後藤ビル物件ID:37656
























- 駅近
- OAフロア
- 個別空調
- 機械警備
賃貸条件
- 階数
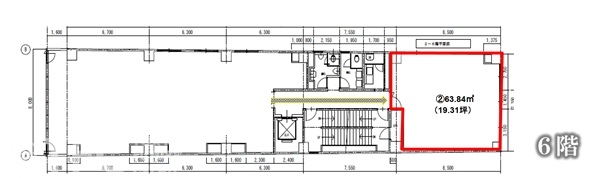
- 6階①
- 面積
- 19.31坪(63.83㎡)
- 賃料
- 応相談
- 礼金
- -
- 管理費
- -
- 預託金
- 9ヵ月
- 償却費
- ー
- 更新料
- ー
- 契約期間
- 普通借 2年
- 入居日
- 相談
- その他
- 開閉時間:月~土 7:00~20:00、日祝 閉館
OA床相談
※賃料等は税別表示です。
物件情報
- 物件名
- 道修町後藤ビル
- 住所
- 大阪府大阪市中央区道修町2-2-6
- 竣工
- 1989年2月
- 建物規模
- 鉄骨鉄筋コンクリート造 地下 1階 地上 9階建
- 主要設備
- OAフロア 機械警備 駅近 エレベーター 個別空調
- 特徴
- -
物件を見学したい、空室情報など
物件のお問い合わせ
物件のお問い合わせ
0120-661-755 受付時間|平日10:00~19:00
物件ID【37656】をお伝えください
お問い合わせから10分で返信いたしますこの物件を問い合わせる 交通アクセス
- ・ 北浜駅 徒歩2分
- ・ 淀屋橋駅 徒歩7分
5秒で簡単資料請求