大手前建設会館ビル物件ID:36294

  • 貸会議室併設
  • 個別空調
  • 機械警備
  • 男女別トイレ

賃貸条件

階数
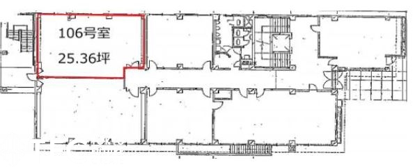
1階106
面積
25.36坪(83.83㎡)
賃料
253,600円
礼金
-
管理費
-
預託金
8ヵ月
償却費
1年未満50% 2年未満40% 2年以上30%
更新料
ー 
契約期間
相談
入居日
2026年7月
備考
解約予告6ヶ月前
原状回復は自然損耗及び経年劣化を含めて借主負担
その他
エレベーター
光ファイバー引き込み可

※賃料等は税別表示です。

物件情報

物件名
大手前建設会館ビル
住所
大阪府大阪市中央区谷町1-3-27
竣工
1959年8月
建物規模
鉄筋コンクリート造陸屋根地階及塔屋付 地上 4階建 
主要設備
個別空調 エレベーター 機械警備 24時間利用可 男女別トイレ 駅近 
特徴
物件を見学したい、空室情報など
物件のお問い合わせ
0120-661-755 受付時間|平日10:00~19:00
物件ID【36294】をお伝えください
お問い合わせから10分で返信いたしますこの物件を問い合わせる

交通アクセス

  • ・ 天満橋駅 徒歩2分
5秒で簡単資料請求
お名前
Email
TEL
WEB非公開物件がございます
たくさんのオフィス物件が公開されている中で流通する物件は極僅か。
なかには解約予告前に相談に来る物件や、解約時の原状回復前に居抜きなどでお引渡しできる物件もございます。
"大阪オフィス"の賃貸情報なら、なんでもお任せください!!
ご来店も大歓迎です
ご来店や御社事務所にて対面でのお打ち合わせをおススメしております。
お客様のご要望を是非お聞かせください!
現事務所の解約スケジュールや移転時期、内装工事、各種手続きのタイミング、引渡しまで全てTFCがご提案いたします。
大阪の賃貸不動産は、TFCのエキスパートにお任せください!!

近くのエリアで探してみる

エリア
大阪エリア 天満橋・谷町
最寄り駅
天満橋

大手前建設会館ビルと同等の坪数の物件

大手前建設会館ビルと同等の賃料の物件

LINEで最新情報を配信中
気軽に相談可能です