山京ビル本館物件ID:9705




- 駅近
- 個別空調
- 男女別トイレ
賃貸条件
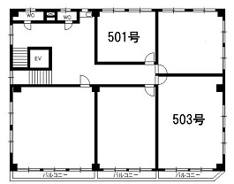
- 階数
- 501号室
- 面積
- 6.68坪(22.08㎡)
- 賃料
- 73,480円
- 礼金
- -
- 管理費
- 21,370円
- 預託金
- 6ヵ月
- 償却費
- 1年未満の解約は3ヶ月分、2年未満の解約は2ヶ月分
- 更新料
- ー
- 契約期間
- 定借 2年
- 入居日
- 10月中旬
- 備考
- 火災保険・保証会社加入要
- その他
- 目白通りに面す!
光ケーブル
※賃料等は税別表示です。
物件情報
- 物件名
- 山京ビル本館
- 住所
- 東京都千代田区飯田橋1-7-10
- 竣工
- 1969年9月
- 建物規模
- 鉄骨鉄筋コンクリート造 地下 1階 地上 10階建
- 主要設備
- 個別空調 光ファイバー引込可 エレベーター 男女別トイレ 24時間利用可 貸会議室1H/500円(税別)
- 特徴
- "千代田区飯田橋の目白通り沿いに建つ「山京ビル本館」は、1969年竣工・SRC造10階建のヴィンテージオフィス。東京メトロ東西線・有楽町線、都営大江戸線・JR中央・総武線が使える飯田橋駅から徒歩5分、さらに九段下駅も徒歩圏で、複数路線を自在に活用した交通利便性が最大の魅力です(電車+バスアクセスも充実)
1フロアの分割利用が可能で、男女別トイレや個別空調、光ファイバー、24時間利用対応など、ビジネスに不可欠な設備が揃っています。リニューアルされた共用部は清潔&明るく、来客時の印象も良好。目白通り沿いで視認性が高く、スタートアップや小規模事務所、SOHOにも最適な稀少区画もあり、利便性と使いやすさを兼ね備えた一棟です。"
物件を見学したい、空室情報など
物件のお問い合わせ
物件のお問い合わせ
0120-486-656 受付時間|平日10:00~19:00
物件ID【9705】をお伝えください
お問い合わせから10分で返信いたしますこの物件を問い合わせる 交通アクセス
- ・ 飯田橋 駅 徒歩5分
- ・ 九段下駅 徒歩5分
山京ビル本館 募集中の区画
階数 | 坪数 | 賃料 | 管理費 | 坪単価 | 預託金 | 入居日 |
---|---|---|---|---|---|---|
5階503号室 | 13.53坪 | 135,300円 | 43,290円 | 16,300円 | 6ヵ月 | 2025年7月中旬 |
5秒で簡単資料請求