日土地西新宿ビル物件ID:45276

  • 駅近
  • 新耐震基準
  • 24時間使用可
  • 天井高2,500mm以上
  • OAフロア
  • 個別空調
  • 貸会議室併設
  • 機械警備
  • 男女別トイレ
  • EV2機以上
  • 駐車場付

賃貸条件

階数
17階
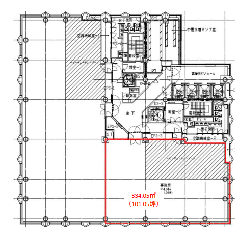
面積
101.05坪(334.04㎡)
賃料
3,132,550円
礼金
-
管理費
-
預託金
12ヵ月
償却費
ー 
更新料
相談 
契約期間
相談 
入居日
2026年7月
その他
共用部充実
視認性良好
駐車場(空き要確認)
管理人常駐

※賃料等は税別表示です。

物件情報

物件名
日土地西新宿ビル
住所
東京都新宿区西新宿6-10-1
竣工
2002年11月
建物規模
鉄骨鉄筋コンクリート造 地下 2階 地上 23階建 
主要設備
OAフロア 天井高2.5M以上 エレベーター10基 機械警備 管理員常駐 駐車場 セントラル空調+個別空調併用 男女別トイレ 24時間利用可 駅近 新耐震 
特徴
駐車場 平置き:60,000円/月 機械式:上55,000円/月・下45,000円/月 敷金3ヶ月
物件を見学したい、空室情報など
物件のお問い合わせ
0120-486-656 受付時間|平日10:00~19:00
物件ID【45276】をお伝えください
お問い合わせから10分で返信いたしますこの物件を問い合わせる

交通アクセス

  • ・ 西新宿駅 徒歩3分
5秒で簡単資料請求
お名前
Email
TEL
WEB非公開物件がございます
新宿区を中心に15年以上、たくさんのオーナー様の信頼を勝ち得てきたTFCだからこそ
ご紹介できる"非公開物件"がございます!!
お客様一人ひとりに合ったこだわり条件に誠心誠意お応えいたします。
"新宿オフィス"の賃貸情報なら、なんでもお任せください!!
ご来店も大歓迎です
安心してお任せいただけるよう、ご来店をおすすめしております。
お客様のご要望を対面にて、是非!お聞かせください!!
現事務所の解約スケジュールや移転時期、内装工事、各種手続きのタイミング、引渡しまで全てTFCがご提案いたします。
新宿エリアの賃貸不動産は、TFCのエキスパートに是非お任せください!!

近くのエリアで探してみる

エリア
新宿エリア 西新宿
最寄り駅
西新宿

日土地西新宿ビルと同等の坪数の物件

日土地西新宿ビルと同等の賃料の物件

LINEで最新情報を配信中
気軽に相談可能です