パレ・ジュノ物件ID:44852

  • 駅近
  • 新耐震基準
  • 24時間使用可
  • 男女別トイレ
  • 駐車場付

賃貸条件

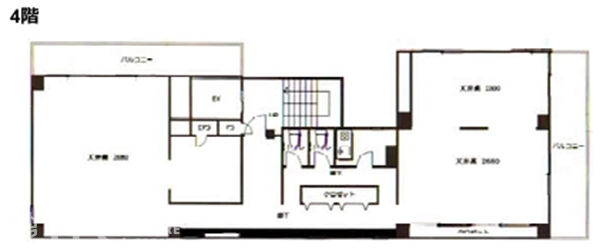
階数
4階
面積
49坪(161.97㎡)
賃料
応相談
礼金
1ヵ月
管理費
-
預託金
6ヵ月
償却費
2ヶ月分 
更新料
新賃料の1ヶ月分 
契約期間
普通借 2年 
入居日
即日 
その他
学習塾・クリニック等相談可

※賃料等は税別表示です。

物件情報

物件名
パレ・ジュノ
住所
東京都渋谷区千駄ヶ谷5-16-6
竣工
1991年2月
建物規模
鉄筋コンクリート造 地上 5階建 
主要設備
給湯 エレベーター 男女別トイレ 個別空調 新耐震 24時間利用可 駐車場 
特徴
渋谷区千駄ケ谷5丁目にございますパレ・ジュノのご紹介です。
山手線・総武・中央緩行線『代々木』駅から徒歩4分の好立地にございます物件です。
1991年築ですが、2021年にリノベーションを行っており、打ちっぱなしのおしゃれな外観が特徴です。
明治通りにも程近く、お車でのアクセスも良好です。最寄駅から徒歩4分ながら、落ち着いた環境にございますので、お仕事にも集中出来ます。
物件を見学したい、空室情報など
物件のお問い合わせ
0120-486-656 受付時間|平日10:00~19:00
物件ID【44852】をお伝えください
お問い合わせから10分で返信いたしますこの物件を問い合わせる

交通アクセス

  • ・ 代々木駅 徒歩4分
5秒で簡単資料請求
お名前
Email
TEL
WEB非公開物件がございます
新宿区を中心に15年以上、たくさんのオーナー様の信頼を勝ち得てきたTFCだからこそ
ご紹介できる"非公開物件"がございます!!
お客様一人ひとりに合ったこだわり条件に誠心誠意お応えいたします。
"新宿オフィス"の賃貸情報なら、なんでもお任せください!!
ご来店も大歓迎です
安心してお任せいただけるよう、ご来店をおすすめしております。
お客様のご要望を対面にて、是非!お聞かせください!!
現事務所の解約スケジュールや移転時期、内装工事、各種手続きのタイミング、引渡しまで全てTFCがご提案いたします。
新宿エリアの賃貸不動産は、TFCのエキスパートに是非お任せください!!

近くのエリアで探してみる

エリア
新宿エリア 新宿・新宿三丁目・新宿御苑
最寄り駅
代々木

パレ・ジュノと同等の坪数の物件

パレ・ジュノと同等の賃料の物件

LINEで最新情報を配信中
気軽に相談可能です