パークウエストビル物件ID:44467

  • 新耐震基準
  • 天井高2,500mm以上
  • OAフロア
  • 個別空調
  • EV2機以上

賃貸条件

階数
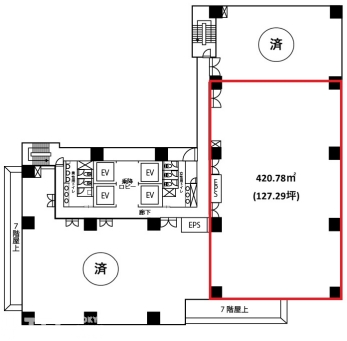
10階1002-1004
面積
127.29坪(420.78㎡)
賃料
2,548,900円
礼金
1ヵ月
管理費
516,000円
預託金
10ヵ月
償却費
1ヶ月分 
更新料
ー 
契約期間
定借 2年 
入居日
即日 
備考
保証会社加入必須
その他
3駅2路線利用可能
エントランス:平日7:00~20:00、日祝7:00~19:00

※賃料等は税別表示です。

物件情報

物件名
パークウエストビル
住所
東京都新宿区西新宿6-12-1
竣工
1994年6月
建物規模
鉄骨造及び一部鉄筋鉄筋コンクリート造 地下 2階 地上 13階建 
主要設備
駐車場 OAフロア エレベーター4基 光ファイバー 給湯 個別空調 機械警備 24時間有人管理 男女別トイレ 天井高:2,700㎜ 新耐震 
特徴
パークウエスト(新宿区西新宿6丁目)は丸の内線「西新宿駅」から徒歩5分、都営大江戸線「都庁前駅」から徒歩9分の人気の西新宿エリアにそびえるオフィスビルです。
1996年竣工の本物件は新耐震基準に適合しており、基準階は約250坪前後、フロアによっては分割している区画もございます。
また外観やエントランスからはグレード感が感じられます。
本物件は建物設備も充実しており、OAフロアや個別空調、機械式の駐車場も併設しております。
近隣には新宿中央公園もあり、緑を感じられる点も魅力の1つでございます。
東京・都心で“来客アクセスが良く、社員の通勤にも便利”なオフィスを探している企業様や社名・ブランドイメージを立地・建物から強化したいビジネスをご検討の方におすすめの物件です。
物件を見学したい、空室情報など
物件のお問い合わせ
0120-486-656 受付時間|平日10:00~19:00
物件ID【44467】をお伝えください
お問い合わせから10分で返信いたしますこの物件を問い合わせる

交通アクセス

  • ・ 西新宿駅 徒歩3分
  • ・ 都庁前駅 徒歩9分
  • ・ 新宿駅 徒歩14分
パークウエストビル 募集中の区画
階数 坪数 賃料 管理費 坪単価 預託金 入居日
11階1101 42.43坪 848,600円 169,720円 24,000円 10ヵ月 相談 
13階1301-1303 120.93坪 2,418,600円 483,720円 24,000円 10ヵ月 即日 
9階906-908 63.58坪 1,271,600円 254,320円 24,000円 10ヵ月 即日 
9階901-904 169.72坪 3,394,400円 678,880円 24,000円 10ヵ月 相談 
5秒で簡単資料請求
お名前
Email
TEL
WEB非公開物件がございます
新宿区を中心に15年以上、たくさんのオーナー様の信頼を勝ち得てきたTFCだからこそ
ご紹介できる"非公開物件"がございます!!
お客様一人ひとりに合ったこだわり条件に誠心誠意お応えいたします。
"新宿オフィス"の賃貸情報なら、なんでもお任せください!!
ご来店も大歓迎です
安心してお任せいただけるよう、ご来店をおすすめしております。
お客様のご要望を対面にて、是非!お聞かせください!!
現事務所の解約スケジュールや移転時期、内装工事、各種手続きのタイミング、引渡しまで全てTFCがご提案いたします。
新宿エリアの賃貸不動産は、TFCのエキスパートに是非お任せください!!

近くのエリアで探してみる

エリア
新宿エリア 西新宿
最寄り駅
西新宿  / 都庁前  / 新宿

パークウエストビルと同等の坪数の物件

パークウエストビルと同等の賃料の物件

LINEで最新情報を配信中
気軽に相談可能です