TA初台ビル物件ID:44363

  • 築浅
  • 駅近
  • 新耐震基準

賃貸条件

階数
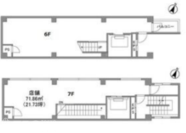
6階601
面積
21.73坪(71.83㎡)
賃料
521,520円
礼金
-
管理費
-
預託金
3ヵ月
償却費
ー 
更新料
新賃料の1ヶ月分 
契約期間
3年
入居日
即日 
備考
短期解約違約金あり
館銘板使用料:22000円/月
成約時に内装工事費用一部貸主負担あり
保証会社利用必須
保険加入要
その他

※賃料等は税別表示です。

物件情報

物件名
TA初台ビル
住所
東京都渋谷区初台1-53-6
竣工
2025年7月
建物規模
鉄骨造一部鉄筋コンクリート造 地下 1階 地上 7階建 
主要設備
エレベーター 駅近 新耐震 
特徴
TA初台ビルは、渋谷区初台1丁目の閑静な住宅街に位置し、都心へのアクセスと静かな環境を兼ね備えたオフィススペースです。最寄りの京王線初台駅から徒歩1分とアクセス面が大きな魅力となっており、新宿や渋谷方面への交通も便利です。周囲には緑豊かな公園や落ち着いた街並みが広がり、集中して仕事に取り組める快適な空間を提供します。シンプルで機能的なデザインと充実の設備を備え、中小企業やスタートアップに理想的な拠点です。都心の便利さと静かな環境を両立したロケーションで、長期的なビジネス展開に最適です。
また駅近くということもあり、様々な飲食店も近隣に点在しております。ランチやディナーに困らない点も魅力の1つでございます。
物件を見学したい、空室情報など
物件のお問い合わせ
0120-486-656 受付時間|平日10:00~19:00
物件ID【44363】をお伝えください
お問い合わせから10分で返信いたしますこの物件を問い合わせる

交通アクセス

  • ・ 初台 駅 徒歩1分
TA初台ビル 募集中の区画
階数 坪数 賃料 管理費 坪単価 預託金 入居日
1階101 20.05坪 678,980円 - 33,800円 3ヵ月 即日 
5秒で簡単資料請求
お名前
Email
TEL
WEB非公開物件がございます
新宿区を中心に15年以上、たくさんのオーナー様の信頼を勝ち得てきたTFCだからこそ
ご紹介できる"非公開物件"がございます!!
お客様一人ひとりに合ったこだわり条件に誠心誠意お応えいたします。
"新宿オフィス"の賃貸情報なら、なんでもお任せください!!
ご来店も大歓迎です
安心してお任せいただけるよう、ご来店をおすすめしております。
お客様のご要望を対面にて、是非!お聞かせください!!
現事務所の解約スケジュールや移転時期、内装工事、各種手続きのタイミング、引渡しまで全てTFCがご提案いたします。
新宿エリアの賃貸不動産は、TFCのエキスパートに是非お任せください!!

近くのエリアで探してみる

エリア
新宿エリア 西新宿
最寄り駅
初台

TA初台ビルと同等の坪数の物件

TA初台ビルと同等の賃料の物件

LINEで最新情報を配信中
気軽に相談可能です