エミナンス九段物件ID:43674

  • 個別空調

賃貸条件

階数
6階
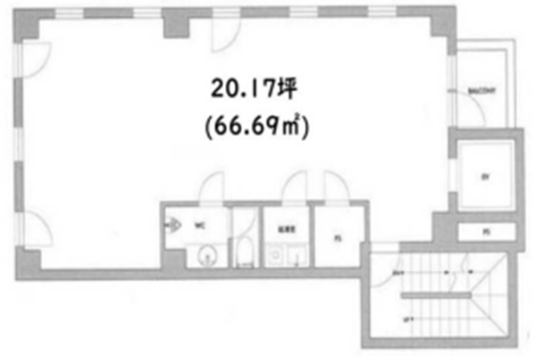
面積
20.17坪(66.67㎡)
賃料
302,550円
礼金
-
管理費
-
預託金
6ヵ月
償却費
2ヶ月分 
更新料
新賃料の1ヶ月分 
契約期間
普通借 2年 
入居日
即日 
備考
保証会社加入必須
保険加入義務有
その他
1フロア1テナント

※賃料等は税別表示です。

物件情報

物件名
エミナンス九段
住所
東京都千代田区九段南3-5-7
竣工
1992年4月
建物規模
鉄筋コンクリート造 地下 1階 地上 6階建 
主要設備
エレベーター 個別空調 男女別トイレ 機械警備 光ファイバー 給湯 24時間利用可 光ファイバー 新耐震 天井高:2,400㎜
特徴
エミナンス九段は、千代田区九段南に位置し、都心のビジネス拠点として非常に魅力的なオフィスです。最寄りの東京メトロ東西線・半蔵門線の九段下駅から徒歩数分で、皇居や靖国神社などの緑豊かな環境にも近く、静かで落ち着いた雰囲気を持ちます。周辺には飲食店やカフェ、コンビニなどの施設も充実しており、社員の利便性も高いです。都心の中心に位置しながらも、閑静な立地で、クライアントとの打ち合わせやビジネスの拠点として最適です。交通アクセスの良さと快適な環境を兼ね備え、多様な企業のニーズに応える理想的なオフィス空間です。
物件を見学したい、空室情報など
物件のお問い合わせ
0120-486-656 受付時間|平日10:00~19:00
物件ID【43674】をお伝えください
お問い合わせから10分で返信いたしますこの物件を問い合わせる

交通アクセス

  • ・ 市ケ谷 駅 徒歩8分
  • ・ 九段下駅 徒歩10分
5秒で簡単資料請求
お名前
Email
TEL
WEB非公開物件がございます
新宿区を中心に15年以上、たくさんのオーナー様の信頼を勝ち得てきたTFCだからこそ
ご紹介できる"非公開物件"がございます!!
お客様一人ひとりに合ったこだわり条件に誠心誠意お応えいたします。
"新宿オフィス"の賃貸情報なら、なんでもお任せください!!
ご来店も大歓迎です
安心してお任せいただけるよう、ご来店をおすすめしております。
お客様のご要望を対面にて、是非!お聞かせください!!
現事務所の解約スケジュールや移転時期、内装工事、各種手続きのタイミング、引渡しまで全てTFCがご提案いたします。
新宿エリアの賃貸不動産は、TFCのエキスパートに是非お任せください!!

近くのエリアで探してみる

エリア
新宿エリア 飯田橋・市ヶ谷
最寄り駅
市ケ谷  / 九段下

エミナンス九段と同等の坪数の物件

エミナンス九段と同等の賃料の物件

LINEで最新情報を配信中
気軽に相談可能です