Biz Feel四谷三丁目(旧:栄ビル)物件ID:43327

  • 駅近
  • OAフロア
  • 個別空調
  • 機械警備
  • 男女別トイレ

賃貸条件

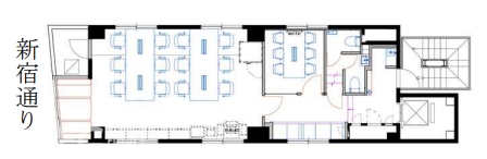
階数
2階
面積
20.18坪(66.7㎡)
賃料
605,400円
礼金
-
管理費
-
預託金
-
償却費
ー 
更新料
ー 
契約期間
普通借 2年 
入居日
2026年4月
備考
2026年3月、内装造作付セットアップ工事完了予定
リニューアル内容・レイアウト等、変更となる可能性がございますので、予めご了承ください。
契約開始より12ヶ月解約不可(12ヶ月以内解約の場合、違約金が発生いたします)
原状回復義務なし(原状変更した場合や破損等を除く)
クリーニング費用:契約時ご負担いただきます
貸主指定の清掃会社と貸室内の清掃契約を締結していただきます
SFビルサポート株式会社と保証委託契約を締結していただきます
与信状況によって敷金の預託をお願いする場合がございます
その他
エレベーター(6人乗り)
エレベーター不停止機能付

※賃料等は税別表示です。

物件情報

物件名
Biz Feel四谷三丁目(旧:栄ビル)
住所
東京都新宿区四谷3-13-11
竣工
1994年3月
建物規模
鉄骨造 地下1階 地上9階建
主要設備
EV1基 個別空調 OAフロア 機械警備 24時間利用可 天井高2,430㎜ 光ファイバー 駅近 新耐震 
特徴
"**Biz Feel 四谷三丁目**は、新宿区四谷3丁目に位置し、東京メトロ丸ノ内線「四谷三丁目」駅から徒歩約2分の距離にあります。また、都営新宿線「曙橋」駅や東京メトロ丸ノ内線「新宿御苑前」駅も徒歩圏内で、複数路線へのアクセスが可能な好立地です。新宿通り沿いに立地し、周辺には飲食店やコンビニも多く、利便性の高いエリアとなっています。1994年竣工の鉄骨造・地下1階地上9階建てのビルで、新耐震基準を満たしています。1階にはアパレルショップが入居しており、来客時の目印にもなります。エレベーターは1基設置されており、OAフロアや個別空調、機械警備など、オフィス利用に必要な設備が整っています。また、24時間利用可能で、天井高は2,430mmと開放感があります。光ファイバーにも対応しており、通信環境も充実しています。現在、セットアップオフィスとして、20.18坪(約66.8㎡)の区画が募集されています。家具や什器が備え付けられており、即入居が可能です。敷金0ヶ月、原状回復義務なしの条件で、初期費用を抑えてオフィスを開設できます。推奨人数は10~15人程度で、スタートアップや少人数チームに最適なサイズ感です。Biz Feel 四谷三丁目は、都心へのアクセスが良好でありながら、静かな環境での業務が可能なため、クリエイティブ系やIT企業など、少人数のチームにおすすめの物件です。新宿エリアの利便性と落ち着いた雰囲気を兼ね備えたオフィスをお探しの方に最適です。
物件を見学したい、空室情報など
物件のお問い合わせ
0120-486-656 受付時間|平日10:00~19:00
物件ID【43327】をお伝えください
お問い合わせから10分で返信いたしますこの物件を問い合わせる

交通アクセス

  • ・ 四谷三丁目駅 徒歩2分
  • ・ 新宿御苑前駅 徒歩9分
  • ・ 曙橋駅 徒歩9分
5秒で簡単資料請求
お名前
Email
TEL
WEB非公開物件がございます
新宿区を中心に15年以上、たくさんのオーナー様の信頼を勝ち得てきたTFCだからこそ
ご紹介できる"非公開物件"がございます!!
お客様一人ひとりに合ったこだわり条件に誠心誠意お応えいたします。
"新宿オフィス"の賃貸情報なら、なんでもお任せください!!
ご来店も大歓迎です
安心してお任せいただけるよう、ご来店をおすすめしております。
お客様のご要望を対面にて、是非!お聞かせください!!
現事務所の解約スケジュールや移転時期、内装工事、各種手続きのタイミング、引渡しまで全てTFCがご提案いたします。
新宿エリアの賃貸不動産は、TFCのエキスパートに是非お任せください!!

近くのエリアで探してみる

エリア
新宿エリア 四谷・四谷三丁目
最寄り駅
四谷三丁目  / 新宿御苑前  / 曙橋

Biz Feel四谷三丁目(旧:栄ビル)と同等の坪数の物件

Biz Feel四谷三丁目(旧:栄ビル)と同等の賃料の物件

LINEで最新情報を配信中
気軽に相談可能です