カテリーナ柳通りビル物件ID:43263

  • 駅近
  • 新耐震基準
  • OAフロア
  • 個別空調
  • 男女別トイレ

賃貸条件

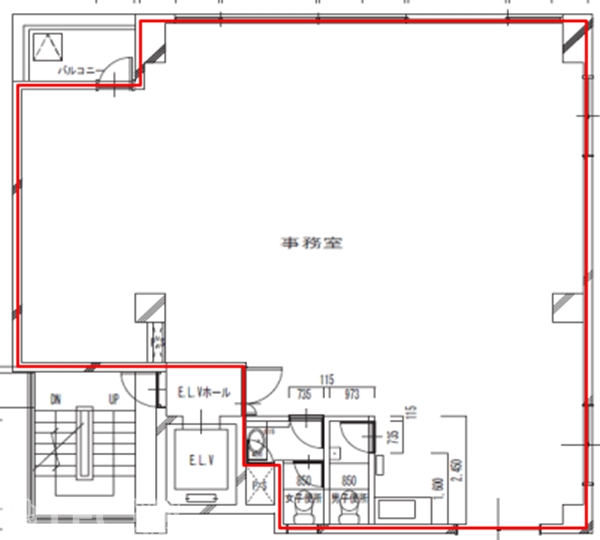
階数
4階
面積
35.31坪(116.72㎡)
賃料
応相談
礼金
-
管理費
-
預託金
12ヵ月
償却費
ー 
更新料
ー 
契約期間
普通借 2年 
入居日
2026年5月11日
その他
2019年男女トイレ・ミニキッチンリニューアル済

※賃料等は税別表示です。

物件情報

物件名
カテリーナ柳通りビル
住所
東京都新宿区新宿1-18-10
竣工
1989年9月
建物規模
鉄骨鉄筋コンクリート造 地上 9階建
主要設備
個別空調 エレベーター 男女別トイレ 機械警備 駅近 
特徴
新宿御苑駅よりすぐの好立地事務所物件
物件を見学したい、空室情報など
物件のお問い合わせ
0120-486-656 受付時間|平日10:00~19:00
物件ID【43263】をお伝えください
お問い合わせから10分で返信いたしますこの物件を問い合わせる

交通アクセス

  • ・ 新宿御苑前駅 徒歩3分
  • ・ 新宿三丁目駅 徒歩6分
5秒で簡単資料請求
お名前
Email
TEL
WEB非公開物件がございます
新宿区を中心に15年以上、たくさんのオーナー様の信頼を勝ち得てきたTFCだからこそ
ご紹介できる"非公開物件"がございます!!
お客様一人ひとりに合ったこだわり条件に誠心誠意お応えいたします。
"新宿オフィス"の賃貸情報なら、なんでもお任せください!!
ご来店も大歓迎です
安心してお任せいただけるよう、ご来店をおすすめしております。
お客様のご要望を対面にて、是非!お聞かせください!!
現事務所の解約スケジュールや移転時期、内装工事、各種手続きのタイミング、引渡しまで全てTFCがご提案いたします。
新宿エリアの賃貸不動産は、TFCのエキスパートに是非お任せください!!

近くのエリアで探してみる

エリア
新宿エリア 新宿・新宿三丁目・新宿御苑
最寄り駅
新宿御苑前  / 新宿三丁目

カテリーナ柳通りビルと同等の坪数の物件

カテリーナ柳通りビルと同等の賃料の物件

LINEで最新情報を配信中
気軽に相談可能です