ルーシッドスクエア新宿イースト(旧:新宿TXビル)物件ID:43178

  • 駅近
  • 新耐震基準
  • 天井高2,500mm以上
  • OAフロア
  • 個別空調
  • 機械警備
  • EV2機以上

賃貸条件

階数
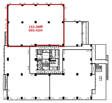
2階
面積
152.28坪(503.39㎡)
賃料
応相談
礼金
-
管理費
-
預託金
12ヵ月
償却費
ー 
更新料
ー 
契約期間
普通借 2年 
入居日
2026年3月
備考
火災保険要加入(指定あり)
その他
2021年3月大規模リフォーム実施済
天井高2600mm
エレベーター乗用2基(15人乗り)
地下駐車場(平置24台・機械式15台)※空き要確認
エントランス:平日8時-19時、土日祭日終日閉鎖(カードにて入館可)

※賃料等は税別表示です。

物件情報

物件名
ルーシッドスクエア新宿イースト(旧:新宿TXビル)
住所
東京都新宿区大久保1-3-21
竣工
1990年3月
建物規模
鉄骨鉄筋コンクリート造 地下1階 地上8階建
主要設備
EV2基,個別空調,OAフロア,男女別トイレ,駐車場40台
特徴
2021年3月 大規模リノベーション実施済み 
物件を見学したい、空室情報など
物件のお問い合わせ
0120-486-656 受付時間|平日10:00~19:00
物件ID【43178】をお伝えください
お問い合わせから10分で返信いたしますこの物件を問い合わせる

交通アクセス

  • ・ 東新宿駅 徒歩4分
  • ・ 新大久保駅 徒歩10分
5秒で簡単資料請求
お名前
Email
TEL
WEB非公開物件がございます
新宿区を中心に15年以上、たくさんのオーナー様の信頼を勝ち得てきたTFCだからこそ
ご紹介できる"非公開物件"がございます!!
お客様一人ひとりに合ったこだわり条件に誠心誠意お応えいたします。
"新宿オフィス"の賃貸情報なら、なんでもお任せください!!
ご来店も大歓迎です
安心してお任せいただけるよう、ご来店をおすすめしております。
お客様のご要望を対面にて、是非!お聞かせください!!
現事務所の解約スケジュールや移転時期、内装工事、各種手続きのタイミング、引渡しまで全てTFCがご提案いたします。
新宿エリアの賃貸不動産は、TFCのエキスパートに是非お任せください!!

近くのエリアで探してみる

エリア
新宿エリア 東新宿・大久保・高田馬場
最寄り駅
東新宿  / 新大久保

ルーシッドスクエア新宿イースト(旧:新宿TXビル)と同等の坪数の物件

ルーシッドスクエア新宿イースト(旧:新宿TXビル)と同等の賃料の物件

LINEで最新情報を配信中
気軽に相談可能です