泉館文人通りビル(旧:精糖会館)物件ID:42591

  • 駅近
  • 新耐震基準
  • EV2機以上
  • 駐車場付
  • 機械警備
  • 男女別トイレ

賃貸条件

階数
2階
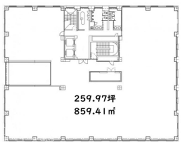
面積
259.97坪(859.38㎡)
賃料
5,719,340円
礼金
-
管理費
-
預託金
12ヵ月
償却費
ー 
更新料
ー 
契約期間
定借 2年 
入居日
即日 
その他
1フロア1テナント
セントラル空調

※賃料等は税別表示です。

物件情報

物件名
泉館文人通りビル(旧:精糖会館)
住所
東京都千代田区三番町5-7
竣工
1992年1月
建物規模
鉄骨鉄筋コンクリート造 地上 7階建 
主要設備
エレベーター2基 個別空調 男女別トイレ 機械警備 24時間利用可 OAフロア 新耐震 駐車場 駅近 
特徴
「泉館文人通りビル(旧:精糖会館)」は、半蔵門駅から徒歩すぐ、
千代田区平河町の文人通り沿いに位置する存在感あるオフィスビルです。
由緒ある建物をリニューアルしたことで、
歴史とモダンが調和した独特の雰囲気を醸し出しています。

外観は明るい石調素材を基調とし、
上品で落ち着いたデザインが街並みに自然に溶け込みます。
エントランスや共用部は改修により一新され、
現代的で清潔感のある印象へと生まれ変わりました。

貸室は整形でレイアウトしやすく、
大きな窓面から自然光が差し込む明るく開放的な空間です。
天井も高く、ゆとりある室内は快適な執務環境を実現します。
設備も更新されており、安心して長期利用できる仕様です。

周辺は官公庁や企業オフィスが集まる静かなエリアで、
品格ある環境を求めるビジネスに最適です。
カフェやレストランも点在し、
働く人々の日常を支える利便性も兼ね備えています。

「泉館文人通りビル」は、歴史を受け継ぎながらも進化を遂げた、
半蔵門エリアを代表する上質なオフィスビルです。
物件を見学したい、空室情報など
物件のお問い合わせ
0120-486-656 受付時間|平日10:00~19:00
物件ID【42591】をお伝えください
お問い合わせから10分で返信いたしますこの物件を問い合わせる

交通アクセス

  • ・ 半蔵門駅 徒歩4分
  • ・ 市ケ谷 駅 徒歩9分
5秒で簡単資料請求
お名前
Email
TEL
WEB非公開物件がございます
新宿区を中心に15年以上、たくさんのオーナー様の信頼を勝ち得てきたTFCだからこそ
ご紹介できる"非公開物件"がございます!!
お客様一人ひとりに合ったこだわり条件に誠心誠意お応えいたします。
"新宿オフィス"の賃貸情報なら、なんでもお任せください!!
ご来店も大歓迎です
安心してお任せいただけるよう、ご来店をおすすめしております。
お客様のご要望を対面にて、是非!お聞かせください!!
現事務所の解約スケジュールや移転時期、内装工事、各種手続きのタイミング、引渡しまで全てTFCがご提案いたします。
新宿エリアの賃貸不動産は、TFCのエキスパートに是非お任せください!!
LINEで最新情報を配信中
気軽に相談可能です