まるべりーひらかわ物件ID:42563

  • 駅近
  • 個別空調

賃貸条件

階数
7階
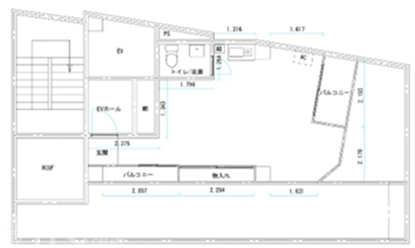
面積
8.94坪(29.55㎡)
賃料
147,510円
礼金
-
管理費
-
預託金
2ヵ月
償却費
ー 
更新料
新賃料の1ヶ月分 
契約期間
定借 2年 
入居日
即日 
備考
保証会社加入必須
火災保険加入必須
解約予告3カ月前
その他
貸室内リニューアル(新規エアコン・新規ミニキッチン・新規トイレ)

※賃料等は税別表示です。

物件情報

物件名
まるべりーひらかわ
住所
東京都千代田区平河町1-7-19
竣工
1980年2月
建物規模
鉄筋コンクリート造 地上 7階建 
主要設備
エレベーター 給湯 トイレ 個別空調 駅近 
特徴
「まるべりーひらかわ」は、半蔵門駅から徒歩わずか数分という好立地に佇む、温かみと上品さを兼ね備えた小規模オフィスビルです。
都心でありながら静けさを感じられる平河町エリアに位置し、落ち着いた環境で集中して業務に取り組みたい企業に最適です。
外観は明るいトーンのタイル張りで、周囲の街並みに自然に溶け込みながらも清潔感と安心感を与えるデザインが印象的です。
貸室はコンパクトながらも整形で使いやすく、個人事務所やクリエイティブ系の少人数オフィスにも適した間取りです。
大きな窓面から柔らかな日差しが差し込み、自然光に包まれた穏やかな空間を演出します。設備はシンプルでありながら必要十分に整っており、
コストパフォーマンスにも優れています。
周辺にはカフェやベーカリー、老舗の飲食店が点在し、ビジネスの合間にほっと一息つける居心地の良い環境が整っています。
半蔵門駅だけでなく、麹町駅や永田町駅も徒歩圏内で、アクセス性も抜群。
「まるべりーひらかわ」は、落ち着きと利便性を両立させたいビジネスパーソンにふさわしい、隠れ家的なオフィスビルです。
物件を見学したい、空室情報など
物件のお問い合わせ
0120-486-656 受付時間|平日10:00~19:00
物件ID【42563】をお伝えください
お問い合わせから10分で返信いたしますこの物件を問い合わせる

交通アクセス

まるべりーひらかわ 募集中の区画
階数 坪数 賃料 管理費 坪単価 預託金 入居日
5階A 7.69坪 126,880円 - 16,500円 2ヵ月 即日 
5階B 10.85坪 179,000円 - 16,500円 2ヵ月 即日 
6階 17.16坪 283,140円 - 16,500円 2ヵ月 即日 
5秒で簡単資料請求
お名前
Email
TEL
WEB非公開物件がございます
新宿区を中心に15年以上、たくさんのオーナー様の信頼を勝ち得てきたTFCだからこそ
ご紹介できる"非公開物件"がございます!!
お客様一人ひとりに合ったこだわり条件に誠心誠意お応えいたします。
"新宿オフィス"の賃貸情報なら、なんでもお任せください!!
ご来店も大歓迎です
安心してお任せいただけるよう、ご来店をおすすめしております。
お客様のご要望を対面にて、是非!お聞かせください!!
現事務所の解約スケジュールや移転時期、内装工事、各種手続きのタイミング、引渡しまで全てTFCがご提案いたします。
新宿エリアの賃貸不動産は、TFCのエキスパートに是非お任せください!!

近くのエリアで探してみる

エリア
新宿エリア 四谷・四谷三丁目
最寄り駅

まるべりーひらかわと同等の坪数の物件

まるべりーひらかわと同等の賃料の物件

LINEで最新情報を配信中
気軽に相談可能です