Biz Feel Ichigaya(旧:ツボヤビル)物件ID:42364

賃貸条件

階数
4階
面積
32.374坪(107.01㎡)
賃料
971,220円
礼金
-
管理費
-
預託金
-
償却費
ー 
更新料
ー 
契約期間
普通借 2年 
入居日
相談 
備考
契約開始より12ヶ月間解約不可(12ヶ月内解約の場合、違約金が発生いたします)
契約時クリーニング費用発生
貸主指定の清掃会社と貸室内の清掃契約を締結していただきます
その他
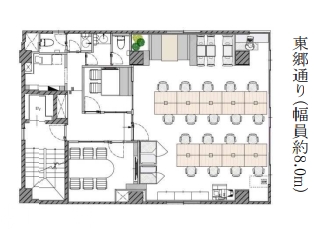
原状回復義務なしのフルセットアップオフィス
2025年10月、貸室リニューアル工事完了予定
執務室什器(18名用)会議室2室(4名用・6名用)フォンブース2室、ラウンジ設置予定

※賃料等は税別表示です。

物件情報

物件名
Biz Feel Ichigaya(旧:ツボヤビル)
住所
東京都千代田区九段南4-7-19
竣工
1985年11月
建物規模
鉄筋コンクリート造 地上 6階建 
主要設備
エレベーター 光ファイバー 駅近 新耐震 個別空調 24時間利用可 
特徴
ツボヤビルは、東京都千代田区九段南4-7-19に位置し、市ヶ谷駅から徒歩圏内でアクセスできる利便性の高いオフィスビルです。
複数路線が利用できるため都内の主要エリアへの移動がスムーズで、来訪者にも分かりやすい立地が魅力です。
周辺は飲食店やコンビニ、銀行などが揃い、働く環境として大変使いやすい点もメリットとなっています。
建物はシンプルで視認性のある外観を備え、管理状態も良好で共用部には清潔感が保たれているため、来客対応の際にも安心してご案内できます。
室内はレイアウトがしやすい形状で、多様な業種に適応できる柔軟性を持つオフィス空間です。
落ち着いた環境と利便性の高さを兼ね備えたツボヤビルは、市ヶ谷・九段エリアで快適なビジネス拠点を求める企業様に自信を持っておすすめできる物件です。
物件を見学したい、空室情報など
物件のお問い合わせ
0120-486-656 受付時間|平日10:00~19:00
物件ID【42364】をお伝えください
お問い合わせから10分で返信いたしますこの物件を問い合わせる

交通アクセス

  • ・ 市ケ谷 駅 徒歩1分
  • ・ 半蔵門駅 徒歩7分
Biz Feel Ichigaya(旧:ツボヤビル) 募集中の区画
階数 坪数 賃料 管理費 坪単価 預託金 入居日
2階 32.37坪 971,100円 - 30,000円 - 2026年5月上旬
5+6階 39.92坪 1,077,840円 - 27,000円 6ヵ月 2026年4月上旬
5秒で簡単資料請求
お名前
Email
TEL
WEB非公開物件がございます
新宿区を中心に15年以上、たくさんのオーナー様の信頼を勝ち得てきたTFCだからこそ
ご紹介できる"非公開物件"がございます!!
お客様一人ひとりに合ったこだわり条件に誠心誠意お応えいたします。
"新宿オフィス"の賃貸情報なら、なんでもお任せください!!
ご来店も大歓迎です
安心してお任せいただけるよう、ご来店をおすすめしております。
お客様のご要望を対面にて、是非!お聞かせください!!
現事務所の解約スケジュールや移転時期、内装工事、各種手続きのタイミング、引渡しまで全てTFCがご提案いたします。
新宿エリアの賃貸不動産は、TFCのエキスパートに是非お任せください!!

近くのエリアで探してみる

エリア
新宿エリア 飯田橋・市ヶ谷
最寄り駅
市ケ谷  / 半蔵門

飯田橋・市ヶ谷でBiz Feel Ichigaya(旧:ツボヤビル)に似た条件の物件

Biz Feel Ichigaya(旧:ツボヤビル)と同等の坪数の物件

Biz Feel Ichigaya(旧:ツボヤビル)と同等の賃料の物件

LINEで最新情報を配信中
気軽に相談可能です