三朝庵ビル物件ID:42360

  • 駅近
  • 個別空調
  • 男女別トイレ

賃貸条件

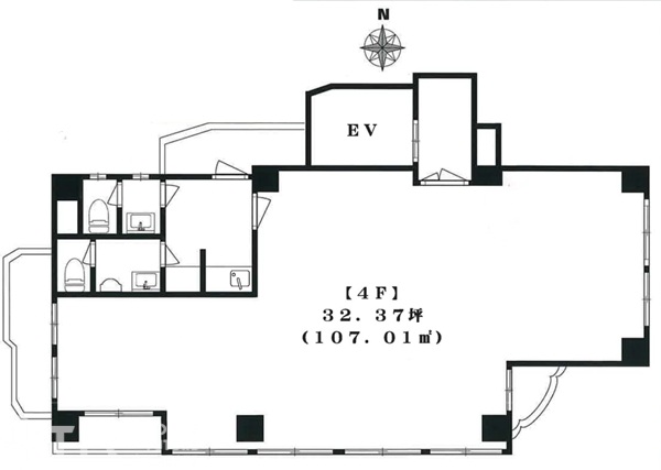
階数
4階
面積
32.37坪(107㎡)
賃料
300,000円
礼金
-
管理費
-
預託金
6ヵ月
償却費
2ヶ月分 
更新料
新賃料の1ヶ月分 
契約期間
普通借 3年 
入居日
相談:現況空き 
備考
看板使用料:20000円
指定火災保険加入必須
その他
早稲田駅徒歩1分の好立地
エアコン
洗面台
キッチン
※現況優先

※賃料等は税別表示です。

物件情報

物件名
三朝庵ビル
住所
東京都新宿区馬場下町62-21
竣工
1988年1月
建物規模
鉄筋コンクリート造 地下 1階 地上 6階建 
主要設備
駅近 
特徴
物件を見学したい、空室情報など
物件のお問い合わせ
0120-486-656 受付時間|平日10:00~19:00
物件ID【42360】をお伝えください
お問い合わせから10分で返信いたしますこの物件を問い合わせる

交通アクセス

  • ・ 早稲田駅 徒歩1分
5秒で簡単資料請求
お名前
Email
TEL
WEB非公開物件がございます
新宿区を中心に15年以上、たくさんのオーナー様の信頼を勝ち得てきたTFCだからこそ
ご紹介できる"非公開物件"がございます!!
お客様一人ひとりに合ったこだわり条件に誠心誠意お応えいたします。
"新宿オフィス"の賃貸情報なら、なんでもお任せください!!
ご来店も大歓迎です
安心してお任せいただけるよう、ご来店をおすすめしております。
お客様のご要望を対面にて、是非!お聞かせください!!
現事務所の解約スケジュールや移転時期、内装工事、各種手続きのタイミング、引渡しまで全てTFCがご提案いたします。
新宿エリアの賃貸不動産は、TFCのエキスパートに是非お任せください!!

近くのエリアで探してみる

エリア
新宿エリア 東新宿・大久保・高田馬場
最寄り駅
早稲田

三朝庵ビルと同等の坪数の物件

三朝庵ビルと同等の賃料の物件

LINEで最新情報を配信中
気軽に相談可能です