21東和ビル物件ID:42249

  • 駅近
  • 個別空調
  • 機械警備
  • 男女別トイレ

賃貸条件

階数
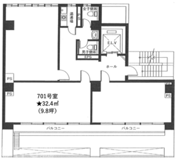
7階701
面積
9.8坪(32.39㎡)
賃料
137,200円
礼金
-
管理費
29,400円
預託金
8ヵ月
償却費
2ヶ月分 
更新料
新賃料の1ヶ月分 
契約期間
普通借 2年 
入居日
即日 
その他
男女別洋式トイレ(新規交換済)
光ファイバー使用可能
夜間オートロック
エアコン・ロスナイ新規交換

※賃料等は税別表示です。

物件情報

物件名
21東和ビル
住所
東京都千代田区飯田橋4-6-1
竣工
1990年2月
建物規模
鉄骨鉄筋コンクリート造 地下 2階 地上 8階建 
主要設備
エレベーター 個別空調 機械警備 24時間利用可 光ファイバー 新耐震 OAフロア 
特徴
飯田橋駅から徒歩圏内に位置する「21東和ビル」は、都心の利便性と快適なビジネス環境を兼ね備えた魅力的なオフィスビルです。
交通アクセスはJR中央・総武線、東京メトロ東西線・有楽町線・南北線、そして都営大江戸線など複数路線が利用可能で、都内主要エリアへの移動もスムーズ。
周辺には飲食店やコンビニ、金融機関が充実しており、働く人々にとって利便性の高い立地です。
建物は管理状態が良好で、明るく清潔感のあるエントランスが来訪者に好印象を与えます。貸室内はレイアウトのしやすい整形空間で、
スタートアップから中規模企業まで幅広い業種に対応可能です。また、自然光を取り込む大きな窓面があり、開放感のある執務スペースを実現。
周囲には大学やオフィスが多く、知的で落ち着いた雰囲気が漂うロケーションも魅力です。ビジネスの拠点として、機能性と環境の両面で満足いただける物件です。
物件を見学したい、空室情報など
物件のお問い合わせ
0120-486-656 受付時間|平日10:00~19:00
物件ID【42249】をお伝えください
お問い合わせから10分で返信いたしますこの物件を問い合わせる

交通アクセス

  • ・ 飯田橋 駅 徒歩4分
5秒で簡単資料請求
お名前
Email
TEL
WEB非公開物件がございます
新宿区を中心に15年以上、たくさんのオーナー様の信頼を勝ち得てきたTFCだからこそ
ご紹介できる"非公開物件"がございます!!
お客様一人ひとりに合ったこだわり条件に誠心誠意お応えいたします。
"新宿オフィス"の賃貸情報なら、なんでもお任せください!!
ご来店も大歓迎です
安心してお任せいただけるよう、ご来店をおすすめしております。
お客様のご要望を対面にて、是非!お聞かせください!!
現事務所の解約スケジュールや移転時期、内装工事、各種手続きのタイミング、引渡しまで全てTFCがご提案いたします。
新宿エリアの賃貸不動産は、TFCのエキスパートに是非お任せください!!

近くのエリアで探してみる

エリア
新宿エリア 飯田橋・市ヶ谷
最寄り駅
飯田橋

21東和ビルと同等の坪数の物件

21東和ビルと同等の賃料の物件

LINEで最新情報を配信中
気軽に相談可能です