MT-O中野新橋物件ID:42246

  • 築浅
  • 駅近
  • 新耐震基準

賃貸条件

階数
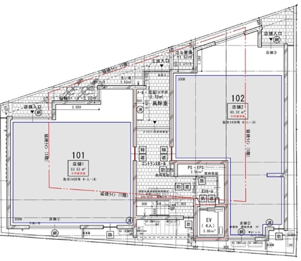
1階102
面積
18.24坪(60.29㎡)
賃料
270,000円
礼金
-
管理費
12,000円
預託金
応相談
償却費
1ヶ月分~※業種により異なる
更新料
ー 
契約期間
定借 3年 
入居日
相談 
備考
保証金:6ヶ月~※業種により異なる
保証会社:応相談
火災保険加入必須
短期解約違約金あり
スケルトン返し
その他
1階貸店舗・事務所
業種応相談・重飲食不可
スケルトン

※賃料等は税別表示です。

物件情報

物件名
MT-O中野新橋
住所
東京都中野区本町5-6-6
竣工
2025年3月
建物規模
鉄筋コンクリート造 地上5階建 
主要設備
新耐震 駅近 エレベーター 
特徴
MT-O中野新橋(中野区本町5丁目)は東京メトロ丸ノ内線「中野新橋」駅徒歩4分の物件です。
「中野坂上駅」も徒歩圏内で、都営大江戸線も利用可能です。新宿まで直通、都内各所へのアクセスが非常に良好で、通勤・通学に便利です。
2025年3月竣工で築年数が浅く、オートロック、宅配ボックス、エレベーターなど、日々の生活を快適にする設備が備わっています。
室内設備も、バス・トイレ別、独立洗面台、浴室乾燥機、温水洗浄便座など、人気の条件を満たしています。
駅周辺にはスーパーやコンビニ、飲食店などが充実しており、買い物や外食に困らない点も魅力です。
物件所在地の中野区本町5丁目は、大通りから一本入ると閑静な住宅街が広がっており、比較的落ち着いた住環境で、神田川や近くの公園など、自然も身近に感じられるエリアもあります。
物件を見学したい、空室情報など
物件のお問い合わせ
0120-486-656 受付時間|平日10:00~19:00
物件ID【42246】をお伝えください
お問い合わせから10分で返信いたしますこの物件を問い合わせる

交通アクセス

  • ・ 中野新橋駅 徒歩4分
5秒で簡単資料請求
お名前
Email
TEL
WEB非公開物件がございます
新宿区を中心に15年以上、たくさんのオーナー様の信頼を勝ち得てきたTFCだからこそ
ご紹介できる"非公開物件"がございます!!
お客様一人ひとりに合ったこだわり条件に誠心誠意お応えいたします。
"新宿オフィス"の賃貸情報なら、なんでもお任せください!!
ご来店も大歓迎です
安心してお任せいただけるよう、ご来店をおすすめしております。
お客様のご要望を対面にて、是非!お聞かせください!!
現事務所の解約スケジュールや移転時期、内装工事、各種手続きのタイミング、引渡しまで全てTFCがご提案いたします。
新宿エリアの賃貸不動産は、TFCのエキスパートに是非お任せください!!

近くのエリアで探してみる

エリア
新宿エリア 西新宿
最寄り駅
中野新橋

MT-O中野新橋と同等の坪数の物件

MT-O中野新橋と同等の賃料の物件

LINEで最新情報を配信中
気軽に相談可能です