新宿フロントビル(エスケー新宿御苑ビル)物件ID:41998

  • 駅近
  • 新耐震基準
  • 天井高2,500mm以上
  • 個別空調
  • 機械警備

賃貸条件

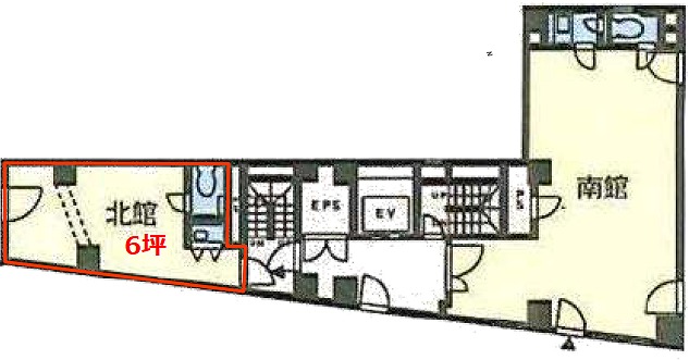
階数
北館3階
面積
6坪(19.83㎡)
賃料
応相談
礼金
-
管理費
-
預託金
6ヵ月
償却費
ー 
更新料
ー 
契約期間
普通借 2年 
入居日
2025年12月18日
備考
電気料:基本料11740円+使用料
水道代:固定金額 南館:2000円/月 北館:1000円/月
連帯保証人要
保証会社要加入
その他
オートロックあり
光ケーブル:MDFまで引込済
空調・照明器具リニューアル済

※賃料等は税別表示です。

物件情報

物件名
新宿フロントビル(エスケー新宿御苑ビル)
住所
東京都新宿区新宿2-1-8
竣工
1991年11月
建物規模
鉄骨造 地下1階 地上9階建
主要設備
EV1基,個別空調,機械警備,24時間利用可,光ファイバー,新耐震,駅近 
特徴
新宿フロントビル(エスケー新宿御苑ビル)は、新宿区新宿2丁目に位置し、交通アクセスの良さが魅力です。最寄りの東京メトロ丸ノ内線新宿御苑前駅から徒歩数分で、都心の主要エリアへのアクセスもスムーズです。JR新宿駅からも徒歩圏内で、山手線や中央線を利用できるため、都内各地や全国への移動も便利です。ビルは現代的なデザインで、快適なオフィス環境を提供。周辺には飲食店やカフェ、コンビニエンスストアも充実しており、働く環境として非常に便利です。また、近隣には新宿御苑や緑豊かなエリアもあり、リフレッシュや休憩にも適しています。交通の便と都市の利便性を兼ね備えたこのビルは、スタートアップから中小企業、大企業まで幅広いニーズに対応できる理想的なオフィスロケーションです。快適な働きやすさとアクセスの良さを求める企業にとって、非常におすすめのオフィススペースです。
物件を見学したい、空室情報など
物件のお問い合わせ
0120-486-656 受付時間|平日10:00~19:00
物件ID【41998】をお伝えください
お問い合わせから10分で返信いたしますこの物件を問い合わせる

交通アクセス

  • ・ 新宿御苑前駅 徒歩1分
  • ・ 新宿三丁目駅 徒歩3分
新宿フロントビル(エスケー新宿御苑ビル) 募集中の区画
階数 坪数 賃料 管理費 坪単価 預託金 入居日
北館B1階 5.44坪 応相談 - - 6ヵ月 即日 
南館8階 14.49坪 応相談 - - 6ヵ月 2026年1月1日
5秒で簡単資料請求
お名前
Email
TEL
WEB非公開物件がございます
新宿区を中心に15年以上、たくさんのオーナー様の信頼を勝ち得てきたTFCだからこそ
ご紹介できる"非公開物件"がございます!!
お客様一人ひとりに合ったこだわり条件に誠心誠意お応えいたします。
"新宿オフィス"の賃貸情報なら、なんでもお任せください!!
ご来店も大歓迎です
安心してお任せいただけるよう、ご来店をおすすめしております。
お客様のご要望を対面にて、是非!お聞かせください!!
現事務所の解約スケジュールや移転時期、内装工事、各種手続きのタイミング、引渡しまで全てTFCがご提案いたします。
新宿エリアの賃貸不動産は、TFCのエキスパートに是非お任せください!!

近くのエリアで探してみる

エリア
新宿エリア 新宿・新宿三丁目・新宿御苑
最寄り駅
新宿御苑前  / 新宿三丁目

新宿・新宿三丁目・新宿御苑で新宿フロントビル(エスケー新宿御苑ビル)に似た条件の物件

新宿フロントビル(エスケー新宿御苑ビル)と同等の坪数の物件

新宿フロントビル(エスケー新宿御苑ビル)と同等の賃料の物件

LINEで最新情報を配信中
気軽に相談可能です