ヴィラパルテノン物件ID:41903

  • 個別空調
  • 駐車場付

賃貸条件

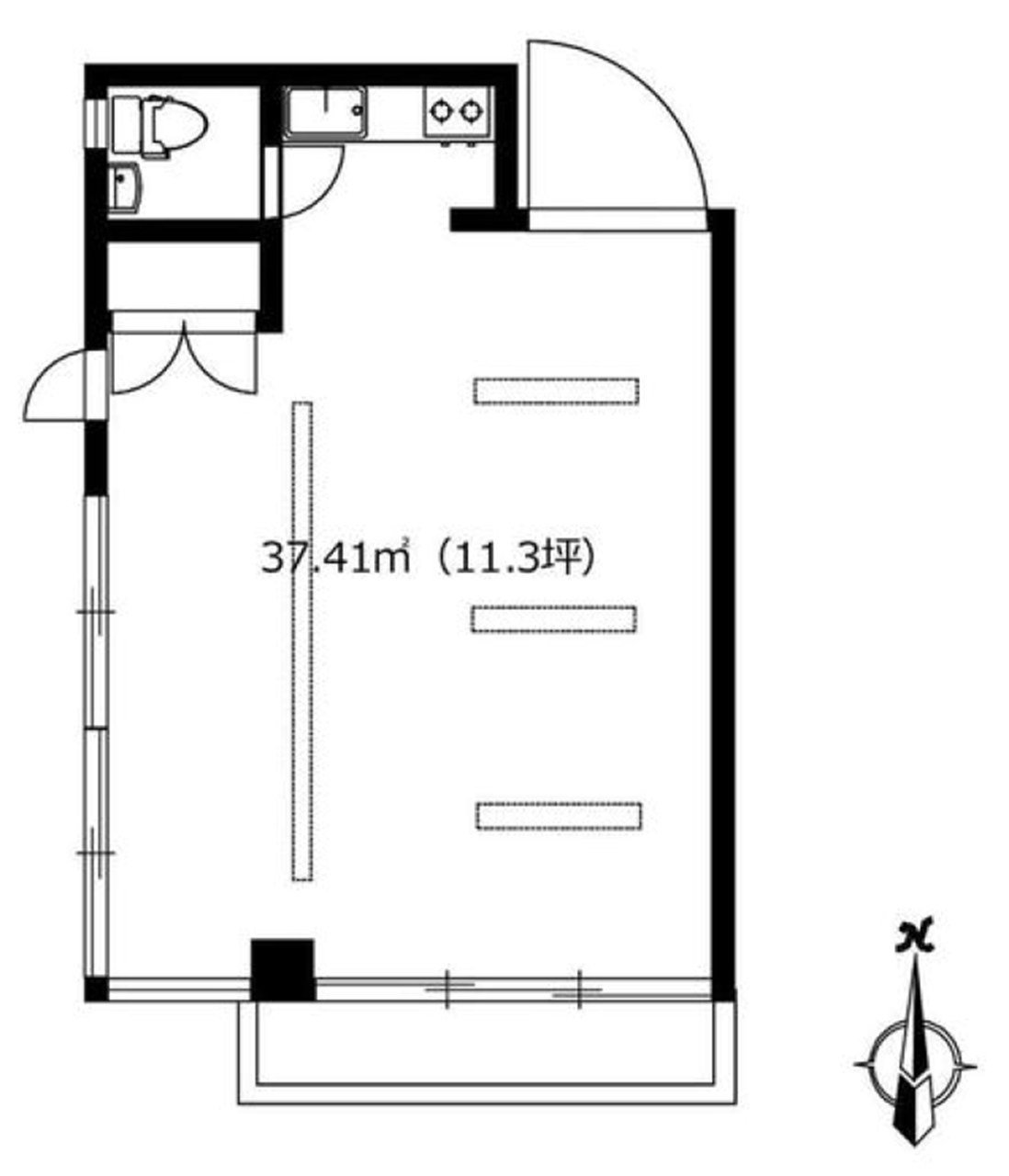
階数
4階部分
面積
11.31坪(37.38㎡)
賃料
163,700円
礼金
1ヵ月
管理費
10,000円
預託金
4ヵ月
償却費
更新料
契約期間
普通借 2年 
入居日
2025年11月上旬予定
備考
保証会社要加入
借家人賠償責任保険要加入
その他
神社至近の落ち着いた環境に佇むオフィス♪
外観タイル貼りで重厚感のある建物です
原宿駅、北参道駅利用可能で、働きやすい環境です
大規模修繕実施中(2025年12月末完了予定)
デザイン・企画・IT企業など、オフィスに適しています♪
室内リノベーション中
近くにコンビニ、おしゃれなカフェあり
フロアタイル
エレベーター
電気・水道
キッチン
エアコン
トイレ
インターホン等
駐車場:空無(要確認)
駐輪場:空無(要確認)
店舗・サロン不可

※賃料等は税別表示です。

物件情報

物件名
ヴィラパルテノン
住所
東京都渋谷区千駄ヶ谷3-55-12
竣工
1985年12月
建物規模
鉄筋コンクリート造 地下1 階 地上5 階建 
主要設備
駅近 エレベーター 個別空調 
特徴
物件を見学したい、空室情報など
物件のお問い合わせ
0120-486-656 受付時間|平日10:00~19:00
物件ID【41903】をお伝えください
お問い合わせから10分で返信いたしますこの物件を問い合わせる

交通アクセス

  • ・ 原宿駅 徒歩5分
  • ・ 北参道駅 徒歩5分
5秒で簡単資料請求
お名前
Email
TEL
WEB非公開物件がございます
新宿区を中心に15年以上、たくさんのオーナー様の信頼を勝ち得てきたTFCだからこそ
ご紹介できる"非公開物件"がございます!!
お客様一人ひとりに合ったこだわり条件に誠心誠意お応えいたします。
"新宿オフィス"の賃貸情報なら、なんでもお任せください!!
ご来店も大歓迎です
安心してお任せいただけるよう、ご来店をおすすめしております。
お客様のご要望を対面にて、是非!お聞かせください!!
現事務所の解約スケジュールや移転時期、内装工事、各種手続きのタイミング、引渡しまで全てTFCがご提案いたします。
新宿エリアの賃貸不動産は、TFCのエキスパートに是非お任せください!!

近くのエリアで探してみる

エリア
新宿エリア 代々木・千駄ヶ谷
最寄り駅
原宿  / 北参道

ヴィラパルテノンと同等の坪数の物件

ヴィラパルテノンと同等の賃料の物件

LINEで最新情報を配信中
気軽に相談可能です