日教販ビル物件ID:41518




- OAフロア
- 個別空調
- EV2機以上
- 駐車場付
賃貸条件
- 階数
- 2階
- 面積
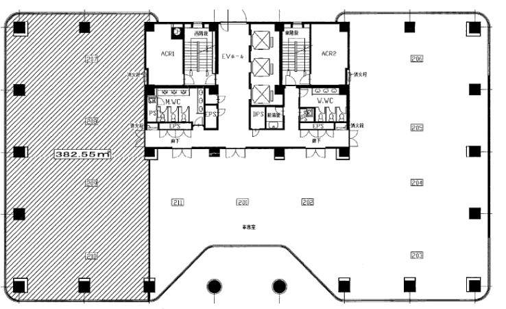
- 115.72坪(382.53㎡)
- 賃料
- 2,036,672円
- 礼金
- -
- 管理費
- 509,100円
- 預託金
- 12ヵ月
- 償却費
- ー
- 更新料
- 相談
- 契約期間
- 普通借 2年
- 入居日
- 2026年3月以降
- 備考
- 火災保険要加入
- その他
- 複数路線利用可能♪
外堀通りに面した好立地の大型オフィスです♪
OAフロア:36mm
天井高:2550mm
エレベーター:3基
光回線:MDFまで引き込み済み
駐車場:地下駐車場(空き要確認)
※現況優先
※賃料等は税別表示です。
物件情報
- 物件名
- 日教販ビル
- 住所
- 東京都文京区後楽1-4-25
- 竣工
- 1989年5月
- 建物規模
- 鉄骨鉄筋コンクリート造 地下 2階 地上 8階建
- 主要設備
- 男女別トイレ 個別空調 光ファイバー 機械警備 エレベーター2基以上 駐車場 OAフロア 天井高2.5M以上 有人管理 24時間利用可
- 特徴
- -
物件を見学したい、空室情報など
物件のお問い合わせ
物件のお問い合わせ
0120-486-656 受付時間|平日10:00~19:00
物件ID【41518】をお伝えください
お問い合わせから10分で返信いたしますこの物件を問い合わせる 交通アクセス
- ・ 飯田橋駅 徒歩5分
- ・ 水道橋駅 徒歩6分
5秒で簡単資料請求