新宿中興ビル物件ID:41173




- 駅近
- 個別空調
- 男女別トイレ
- 駐車場付
賃貸条件
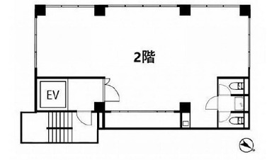
- 階数
- 2階
- 面積
- 30坪(99.17㎡)
- 賃料
- 390,000円
- 礼金
- 1ヵ月
- 管理費
- 84,000円
- 預託金
- 6ヵ月
- 償却費
- 2ヶ月分
- 更新料
- 新賃料の1ヶ月分
- 契約期間
- 定借 2年
- 入居日
- 相談
- 備考
- 駐車場1台あり(別途費用40000円+税)/更新料有
保証会社・火災保険要加入 - その他
- フローリング調
室内トイレ
※賃料等は税別表示です。
物件情報
- 物件名
- 新宿中興ビル
- 住所
- 東京都新宿区下宮比町3-13
- 竣工
- 1990年1月
- 建物規模
- 鉄筋コンクリート造 地下 1階 地上 5階建
- 主要設備
- 個別空調 24時間利用可 エレベーター
- 特徴
- 新宿中興ビル(新宿区下宮比町)は外観がグレー系で、シンプルかつ落ち着いた印象を与えるデザインの建物です。
最寄り駅は飯田橋駅となっており、複数路線利用可能で移動が便利な点が魅力です。
徒歩圏内には銀行や郵便局、コンビニ・カフェ・飲食店等があり様々なビジネスニーズに対応可能です。
また神楽坂や小石川後楽園などの文化・自然スポットにも近く、ビジネスだけでなく環境のバランスも良好です。
物件を見学したい、空室情報など
物件のお問い合わせ
物件のお問い合わせ
0120-486-656 受付時間|平日10:00~19:00
物件ID【41173】をお伝えください
お問い合わせから10分で返信いたしますこの物件を問い合わせる 交通アクセス
- ・ 飯田橋 駅 徒歩4分
新宿中興ビル 募集中の区画
階数 | 坪数 | 賃料 | 管理費 | 坪単価 | 預託金 | 入居日 |
---|---|---|---|---|---|---|
B1階 | 24.5坪 | 350,000円 | 70,000円 | 16,800円 | 6ヵ月 | 即日 |
B1・2階一括 | 54.997坪 | 700,000円 | 100,000円 | 14,500円 | 10ヵ月 | 即日 |
5秒で簡単資料請求