武藤邸物件ID:41172




- 個別空調
- 駐車場付
賃貸条件
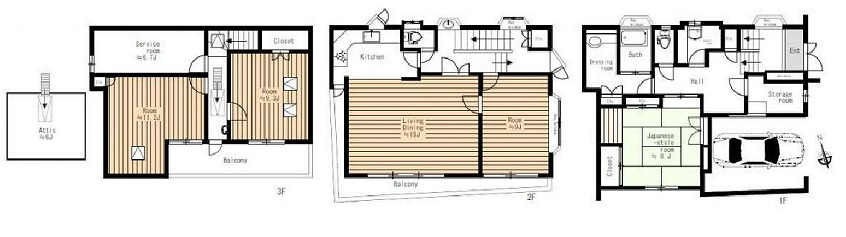
- 階数
- 1-3階
- 面積
- 57.52坪(190.14㎡)
- 賃料
- 480,000円
- 礼金
- 1ヵ月
- 管理費
- -
- 預託金
- 3ヵ月
- 償却費
- ー
- 更新料
- 新賃料の1ヶ月分
- 契約期間
- 普通借 2年
- 入居日
- 即日
- 備考
- 保証会社要加入 火災保険要加入 更新事務手数料0.25ヶ月
※敷金3ヶ月~(用途、業種により要相談) - その他
- システムキッチン、屋根裏、倉庫、トップライト クローゼット
洗面化粧台,室内洗濯機置き場、ランドリールーム,出窓,下駄箱
南向バルコニー システムキッチン
室内トイレ ウォシュレット 室内洗濯機置場 ランドリールーム 倉庫
洗面化粧台
※賃料等は税別表示です。
物件情報
- 物件名
- 武藤邸
- 住所
- 東京都新宿区矢来町17
- 竣工
- 1986年1月
- 建物規模
- 木・鉄筋コンクリート造 地下 1階 地上 2階建
- 主要設備
- 駐車場 個別空調
- 特徴
- -
物件を見学したい、空室情報など
物件のお問い合わせ
物件のお問い合わせ
0120-486-656 受付時間|平日10:00~19:00
物件ID【41172】をお伝えください
お問い合わせから10分で返信いたしますこの物件を問い合わせる 交通アクセス
- ・ 神楽坂駅 徒歩6分
- ・ 牛込神楽坂駅 徒歩8分
5秒で簡単資料請求